Нескучный и аккуратный интерьер. Показываем уютную квартиру на последнем этаже новостройки
4868В десятиэтажном доме в «Минск-Мире» продается обустроенная евротрешка. Она с легким, но при этом ярким интерьером, большими окнами и хорошим видом, ведь квартира располагается на последнем уровне. Тут все готово к проживанию. Показываем квартиру и пишем ее цену.
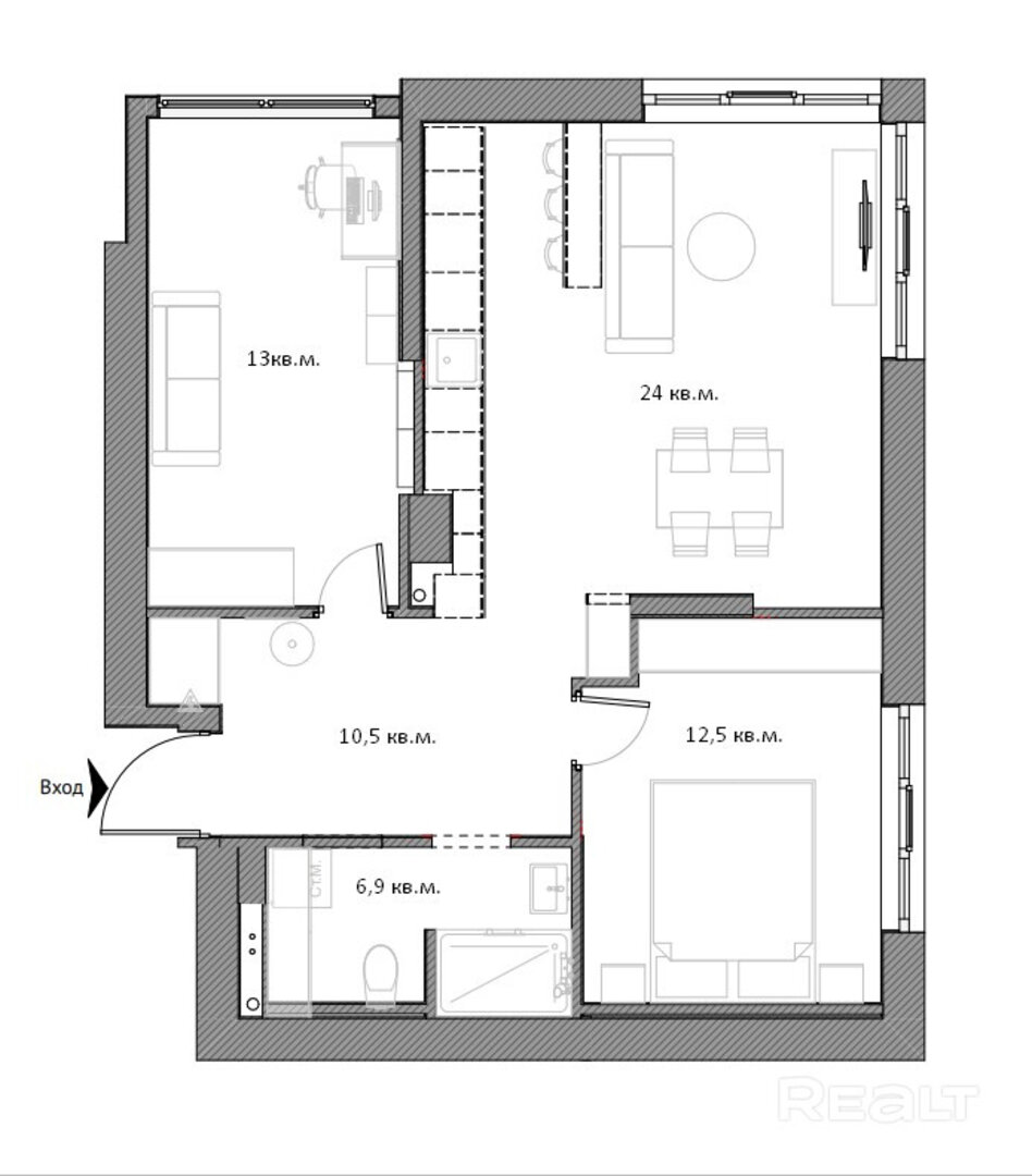
Квартира располагается на последнем этаже десятиэтажного дома, который относится к ЖК «Минск-Мир». Его возвели в 2024 году по улице Братская, 9. Площадь евротрешки — 66,9 м².
Выбираете квартиру в новостройке? Тогда вам поможет наш обзор по всем новостройкам Минска и пригорода. Мы собрали в одном месте и понятном виде, всю необходимую информацию: от наличия квартир по площадям и ценам, до условий кредитования. А сейчас он стал еще информативнее и полезнее: мы добавили цены реальных сделок по новостройкам от собственников. Наш обзор сэкономит вам время и поможет сделать максимально рациональный выбор!
Квартира разделена на две изолированные комнаты и одно общее пространство, где совместили три зоны. Жилье выдержано в одной стилистике. Светлые отделочные материалы хорошо сочетаются с легким зеленым оттенком.
Особенностью этой части квартиры является наличие нескольких окон в пол, которые образуют застекленный угол.
Поблизости располагается новый торговый центр, в шаговой доступности — станция метро «Аэродромная».
Цена квадратного метра составляет 2 780 долларов. Евротрешка обойдется в 186 тысяч долларов.
Читайте также:
Бюджетные квартиры рядом с будущими станциями зеленой ветки метро. Сколько они стоят и как выглядят?
Это наша новая стабильность. Что происходит с продажей квартир в Минске и что нас ждет летом
87474
Застройщики переоценили спрос на студии. Что будет с ценами на новостройки этим летом
53762
10 самых интересных минских строек жилья в 2026 году. Панельные, монолитные, элитные и эконом
37521
«Фиксируем завышенные цены». Что происходит с квартирами в Минске прямо сейчас
8786
Включить стиральную машину — это тоже работа. Как делить домашние обязанности и не ссориться из-за быта
9261
Нашли пять классных квартир, в которые уже можно заезжать. Вот как купить их, если на руках — только 10% от стоимости
11070
«Дом с потенциалом». Семья построила умный A-frame под Минском, а сейчас продает по цене однушки
16347
Бизнес там, где есть спрос: на аукцион выставили 10 коммерческих помещений в свежих новостройках
6622
Видео этих агентов по недвижимости набирают по 50 тысяч просмотров. Что они делают?
15309
«Переезжать сюда насовсем желания нет». Узнали, как живется в брежневках в Чижовке
77681
Кредит, использование семейного капитала, уплата налогов. В каких случаях нужно вызывать профессионального оценщика недвижимости?
5891
Что такое альтернативные сделки или как переехать в квартиру побольше, не доплатив ни копейки?
9920
Минчане построили дом из двойного утепленного бруса с "подземной" баней. Съездили посмотреть, что у них получилось
64027
Нашли самую маленькую однушку в Минске с ремонтом и мебелью. И что по цене?
63440
За два участка боролись по 74 и 72 человека - и это новый рекорд! Рассказываем об итогах земельного аукциона в Минском районе
29973
Многие здесь работают в «Газпроме». Побывали в тихом поселке под Минском, о котором мало кто знает
52401
Не хватает на жилье в Минске? Собрали недорогие квартиры в городах-спутниках, где сразу можно жить
31706
Есть и за 7 тысяч. Нашли крепкие хаты до 20 тысяч долларов возле озер и леса
92290
"Когда переехали - мама заплакала". Как жили раньше и как живут сейчас в Шабанах - криминальном районе Минска 90-х
80457
До 50 тысяч долларов. Как выглядят и сколько стоят недорогие двушки в Минске, где сразу можно жить
84124- Бизнес центры
- Торговые центры
- Продажа гаражи, машиноместа
- Продажа офисы, нежилые помещения
- Продажа магазины, торговые помещения
- Продажа рестораны, бары, кафе
- Продажа склады, производства
- Продажа бизнес, сфера услуг
- Аренда офиса, помещений
- Аренда магазины, торговые помещения
- Аренда рестораны, бары, кафе
- Аренда склады, производства
- Аренда сфера услуг, игровой бизнес
- Аренда гаража, машиномест















