Нашли в атмосферном районе квартиру с очень недорогим квадратом. И даже ремонт не нужен!
22780Если стандартные панельки-коробочки на сотни квартир вас не вдохновляют, есть смысл рассмотреть квартиры в районах с малоэтажной застройкой прошлого века. К примеру, прямо сейчас в тихом и уютном Тракторозаводском поселке продается трехкомнатная квартира со свежим ремонтом. Жилье располагается в двухэтажном доме с высокими потолками и стоит совсем недорого. Рассказываем и показываем.
Находится трешка в двухэтажном доме рядом с метро «Тракторный завод». Адрес малоэтажки — переулок Ученический, 3. Напомним, что Тракторозаводской поселок начали строить после войны вместе с Минским тракторным заводом. Здесь возводили жилье для заводчан. Планировалось, что это будет свой город в городе — со всей инфраструктурой и атмосферой. Здесь невысокая плотность застройки, а здания расположены так, чтобы всюду попадало солнце. Жилые дома огорожены от улицы, а между ними много свободного пространства. Проектировал Тракторозаводской поселок архитектор Зиновий Розенфельд, который участвовал в оформлении проспекта Независимости.
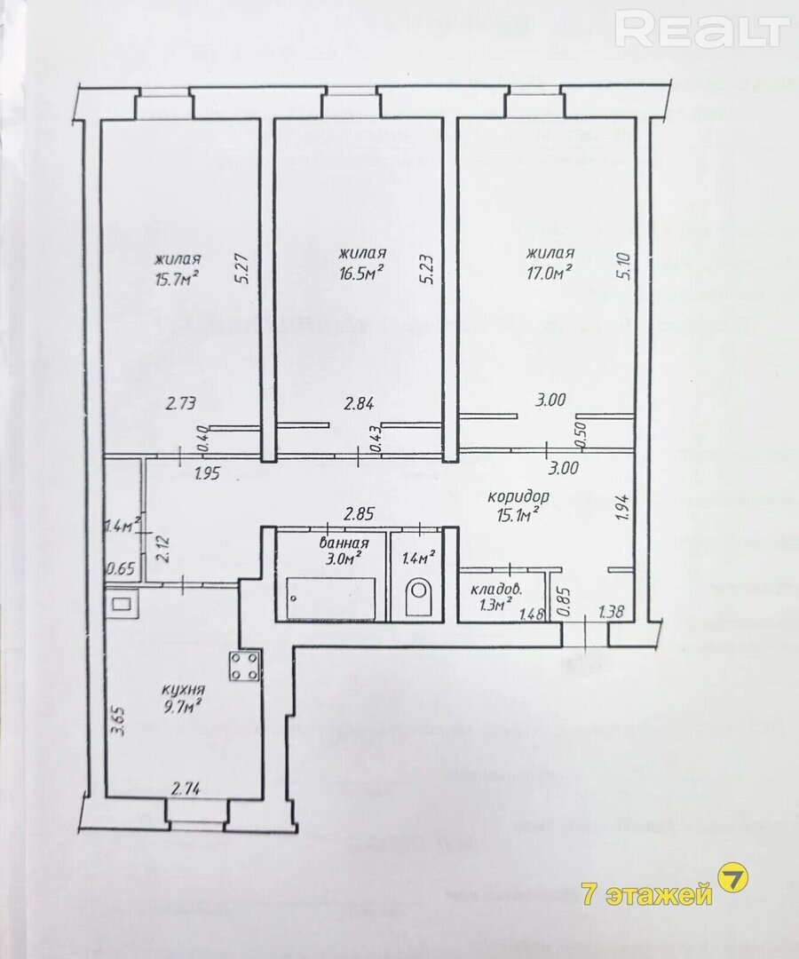
Сейчас тут продается просторная трехкомнатная квартира площадью 81 квадратный метр. Планировка у жилья на первом этаже — удобная и функциональная. Квартира состоит из отдельной кухни площадью почти 10 квадратов, трех изолированных комнат и раздельного санузла. Бонусом идут высокие трехметровые потолки, создающие ощущение простора и уюта.
Этот вариант наверняка заинтересует тех, кто ценит исторический шарм, качество сталинской постройки и комфорт жизни в спокойном и тихом уголке с минимумом соседей.
Стоит такая квартира — 109,9 тысячи долларов (1355 долларов — за метр).
Читайте также:
В 2000-х этот ЖК в лесу считался элитным. А сколько здесь стоит самая дешевая квартира сейчас?
Уютная однушка в перспективном районе недалеко от центра Минска. А что по цене?
Сколько нужно зарабатывать, чтобы одобрили кредит на жилье? Рассказали представители банка
Не нужны ни справки, ни залог. Как купить жилье в лизинг по ставке 11%?
Это наша новая стабильность. Что происходит с продажей квартир в Минске и что нас ждет летом
93010
Застройщики переоценили спрос на студии. Что будет с ценами на новостройки этим летом
56719
10 самых интересных минских строек жилья в 2026 году. Панельные, монолитные, элитные и эконом
44175
«Фиксируем завышенные цены». Что происходит с квартирами в Минске прямо сейчас
12428
«Заселились 40 лет назад, уезжать не хотим». Как живется в панельках возле парка Павлова в Малиновке
21489
Телефон в рассрочку будет выгоднее, чем при оплате сразу? Смотрим обновленный салон Life в центре Минска
5860
У вас еще нет своего жилья? Считаем, сколько вы будете тратить на аренду и сколько — на платежи за собственную квартиру
5304
Видео этих агентов по недвижимости набирают по 50 тысяч просмотров. Что они делают?
15309
«Переезжать сюда насовсем желания нет». Узнали, как живется в брежневках в Чижовке
77681
Кредит, использование семейного капитала, уплата налогов. В каких случаях нужно вызывать профессионального оценщика недвижимости?
5891
Что такое альтернативные сделки или как переехать в квартиру побольше, не доплатив ни копейки?
9920
Минчане построили дом из двойного утепленного бруса с "подземной" баней. Съездили посмотреть, что у них получилось
64027
Нашли самую маленькую однушку в Минске с ремонтом и мебелью. И что по цене?
63440
За два участка боролись по 74 и 72 человека - и это новый рекорд! Рассказываем об итогах земельного аукциона в Минском районе
29973
Многие здесь работают в «Газпроме». Побывали в тихом поселке под Минском, о котором мало кто знает
52401
Не хватает на жилье в Минске? Собрали недорогие квартиры в городах-спутниках, где сразу можно жить
31706
Есть и за 7 тысяч. Нашли крепкие хаты до 20 тысяч долларов возле озер и леса
92290
"Когда переехали - мама заплакала". Как жили раньше и как живут сейчас в Шабанах - криминальном районе Минска 90-х
80457
До 50 тысяч долларов. Как выглядят и сколько стоят недорогие двушки в Минске, где сразу можно жить
84124
"На нашей детской площадке собиралась вся Малиновка". Как живется в тех самых "английских" домах от МАПИДа в Минске
35883- Бизнес центры
- Торговые центры
- Продажа гаражи, машиноместа
- Продажа офисы, нежилые помещения
- Продажа магазины, торговые помещения
- Продажа рестораны, бары, кафе
- Продажа склады, производства
- Продажа бизнес, сфера услуг
- Аренда офиса, помещений
- Аренда магазины, торговые помещения
- Аренда рестораны, бары, кафе
- Аренда склады, производства
- Аренда сфера услуг, игровой бизнес
- Аренда гаража, машиномест











