В первом доме Северного Берега продается квартира с дофаминовым интерьером. Что по цене?
10186В этой евродвушке не станет скучно из-за ярких фасадов кухни и стен, даже балкон тут нетипичного цвета. Кроме этого, жилье готово к проживанию — обставлено хорошей техникой и мебелью. Два окна в спальне позволили организовать там рабочее место. Посмотрите, как все удалось обустроить. Цена в конце.
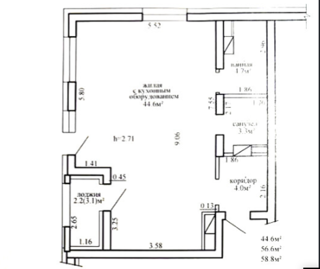
Дом по улице Виталия Цвирко, 78 — Парклэнд 1 — первый в ЖК «Северный Берег». Его возвели в шесть этажей в 2023-м. Здесь на втором уровне продается евродвушка в 58,8 м².
Выбираете квартиру в новостройке? Тогда вам поможет наш обзор по всем новостройкам Минска и пригорода. Мы собрали в одном месте и понятном виде, всю необходимую информацию: от наличия квартир по площадям и ценам, до условий кредитования. А сейчас он стал еще информативнее и полезнее: мы добавили цены реальных сделок по новостройкам от собственников. Наш обзор сэкономит вам время и поможет сделать максимально рациональный выбор!
В кухне-гостиной обустроена столовая. В квартире продумано несколько сценариев освещения. Установлена и бытовая техника бренда Bosch: посудомойка, стиральная машина с функцией сушки, духовой шкаф с режимами микроволновки. Холодильник тут встроенный.
В светлой спальне удалось выделить рабочее место. Здесь же есть шкаф для вещей.
В шаговой доступности находятся «Клуб жильцов» с игровой зоной, сауной, кинотеатром и комнатами для переговоров, а также парк с водохранилищем.
Оценили евродвушку в 189 тысяч долларов. Получается, что квадрат обойдется в 3 214 долларов.
Читайте также:
Самые бюджетные однушки в Минске стоят до 62 тысяч долларов. Вот они
Милый деревенский домик с баней в удобной локации. Просят меньше 30 тысяч долларов
Современный домик в деревне по цене двушки. Нашли такой в 40 км от Минска
Это наша новая стабильность. Что происходит с продажей квартир в Минске и что нас ждет летом
85315
Застройщики переоценили спрос на студии. Что будет с ценами на новостройки этим летом
52634
10 самых интересных минских строек жилья в 2026 году. Панельные, монолитные, элитные и эконом
35227
Красивый дом у Минского моря. Минчанин показал, как классно жить за городом
16815
«Фиксируем завышенные цены». Что происходит с квартирами в Минске прямо сейчас
7077
Овощи так и попрут: как и из чего лучше сделать высокие грядки. Изучили опыт
15568
Вне времени и моды: усадьба в Тарасово с клинкерным фасадом, домом-баней и прудом. Побывали внутри
22221
Включить стиральную машину — это тоже работа. Как делить домашние обязанности и не ссориться из-за быта
1754
Видео этих агентов по недвижимости набирают по 50 тысяч просмотров. Что они делают?
15309
«Переезжать сюда насовсем желания нет». Узнали, как живется в брежневках в Чижовке
77681
Кредит, использование семейного капитала, уплата налогов. В каких случаях нужно вызывать профессионального оценщика недвижимости?
5862
Что такое альтернативные сделки или как переехать в квартиру побольше, не доплатив ни копейки?
9920
Минчане построили дом из двойного утепленного бруса с "подземной" баней. Съездили посмотреть, что у них получилось
64027
Нашли самую маленькую однушку в Минске с ремонтом и мебелью. И что по цене?
63440
За два участка боролись по 74 и 72 человека - и это новый рекорд! Рассказываем об итогах земельного аукциона в Минском районе
29973
Многие здесь работают в «Газпроме». Побывали в тихом поселке под Минском, о котором мало кто знает
52401
Не хватает на жилье в Минске? Собрали недорогие квартиры в городах-спутниках, где сразу можно жить
31706
Есть и за 7 тысяч. Нашли крепкие хаты до 20 тысяч долларов возле озер и леса
92290
"Когда переехали - мама заплакала". Как жили раньше и как живут сейчас в Шабанах - криминальном районе Минска 90-х
80457
До 50 тысяч долларов. Как выглядят и сколько стоят недорогие двушки в Минске, где сразу можно жить
84124- Бизнес центры
- Торговые центры
- Продажа гаражи, машиноместа
- Продажа офисы, нежилые помещения
- Продажа магазины, торговые помещения
- Продажа рестораны, бары, кафе
- Продажа склады, производства
- Продажа бизнес, сфера услуг
- Аренда офиса, помещений
- Аренда магазины, торговые помещения
- Аренда рестораны, бары, кафе
- Аренда склады, производства
- Аренда сфера услуг, игровой бизнес
- Аренда гаража, машиномест






























