Дома для семьи. Смотрим варианты поближе к Минску по цене трешки
4064Когда смотришь на стоимость квартир в Минске, невольно возникает вопрос: а может лучше за эти деньги сразу дом в пригороде купить? Что ж, пока такая возможность имеется — цены на загородку не так быстро растут, еще есть варианты. В нашей подборке вы найдете свежие дома, подходящие для большой семьи: все больше ста квадратов, в каждом по 3−4 спальни, по два санузла, просторные гостиные и кухни. Локации тоже зачетные — с видом на лес, рядом с речкой и озером.
СТ «Малиновка-Сад», логойское направление, 9 км от МКАД
Дом стоит на утепленном фундаменте, стены из блоков, утепление 100 мм. На крыше – металлочерепица, бесшовная ливневая система. Перекрытие утеплено минеральной ватой 200 мм. Фасад выполнен из натуральных паропроницаемых материалов: декоративная штукатурка, планкен из лиственницы и плитка ручной формовки. Есть архитектурная подсветка.
Участок 10 соток, огорожен. Имеется терраса, выполнено мощение плиткой, сделан отвод ливневой воды с кровли в колодец.
Стоимость – 176 000 долларов.
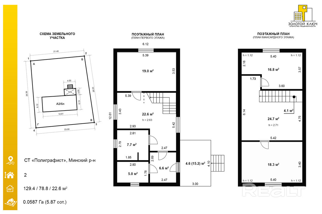
СТ «Полиграфист», молодечненское направление, 22 км от МКАД
Товарищество рядом с сосновым бором и санаторной зоной. В этом СТ живут круглый год, дороги асфальтированы и регулярно чистятся зимой, на въезде установлены камеры. Рядом имеются магазины, остановки транспорта, школа и детский сад — в Лошанах. До Минска — около 10 минут на автомобиле, маршрутки ходят каждые 20 минут.
Участок 5,9 сотки полностью благоустроен: аккуратный газон, тротуарная плитка, ливневая система. Установлены автоматические ворота. Здесь есть место и для игр детей, и для семейных посиделок на свежем воздухе.
Стоимость этого дома для круглогодичной жизни в СТ — 134 999 доллларов.
СТ «Родник-2009», раковское направление, 23 км от МКАД
Участок 7,8 сотки огорожен, установлены автоматические ворота, есть большая площадка для парковки.
Продается за 199 000 долларов. Возможен обмен на квартиру в Минске.
Каменка, московское направление, 32 км от МКАД
Здесь продается двухэтажный дом, готовый к проживанию. Построен в 2009 году, но 4 года назад была заменена крыша (утепление, хорошая металлочерепица), утеплен фасад, сделана отапливаемая комната отдыха с большим количеством посадочных мест (ТВ, караоке) и панорамными окнами. В общем, выглядит вполне современно.
Участок 25 соток. Есть большая стоянка с зарядкой для электроавтомобиля на 7,5 кВт. Имеется вольер для собаки, электрифицированная беседка с мангалом и сарай (свет тоже есть).
За все это просят 154 000 долларов.
Володьки, слуцкое направление, 38 км от МКАД
Участок 15 соток, частично благоустроен.
Стоимость — 130 000 долларов.
Читайте также:
Задача на выходные: оживить газон после зимы. Рассказываем, как это правильно сделать
Нашли пять бюджетных однушек в центре Минска. Как они выглядят?
Это наша новая стабильность. Что происходит с продажей квартир в Минске и что нас ждет летом
81038
Застройщики переоценили спрос на студии. Что будет с ценами на новостройки этим летом
50464
10 самых интересных минских строек жилья в 2026 году. Панельные, монолитные, элитные и эконом
30651
Ищете офис недалеко от метро? Посмотрите, какой вариант класса В+ предлагают в районе Михалово
4104
Минск или пригород? Что выбрать, если бюджет ограничен: реальные истории
7214
Почти гектар закрытой территории и 5 теннисных кортов профессионального уровня. В Минске продают уникальный спорткомплекс
18805
«За этим ЖК — будущее». Агент по недвижимости рассказал, как выбрал квартиру себе
33927
«План был очень оптимистичным». Минчане продали квартиру и построили домики на берегу озера
47245
Все чертежи делали сами, на ремонт ушло три с половиной месяца. Семья риэлтеров показала свой дом у леса
14734
Видео этих агентов по недвижимости набирают по 50 тысяч просмотров. Что они делают?
15034
«Переезжать сюда насовсем желания нет». Узнали, как живется в брежневках в Чижовке
77384
Кредит, использование семейного капитала, уплата налогов. В каких случаях нужно вызывать профессионального оценщика недвижимости?
5506
Что такое альтернативные сделки или как переехать в квартиру побольше, не доплатив ни копейки?
9404
Минчане построили дом из двойного утепленного бруса с "подземной" баней. Съездили посмотреть, что у них получилось
64027
Нашли самую маленькую однушку в Минске с ремонтом и мебелью. И что по цене?
63440
За два участка боролись по 74 и 72 человека - и это новый рекорд! Рассказываем об итогах земельного аукциона в Минском районе
29973
Многие здесь работают в «Газпроме». Побывали в тихом поселке под Минском, о котором мало кто знает
52401
Не хватает на жилье в Минске? Собрали недорогие квартиры в городах-спутниках, где сразу можно жить
31706
Есть и за 7 тысяч. Нашли крепкие хаты до 20 тысяч долларов возле озер и леса
92290
"Когда переехали - мама заплакала". Как жили раньше и как живут сейчас в Шабанах - криминальном районе Минска 90-х
80457- Бизнес центры
- Торговые центры
- Продажа гаражи, машиноместа
- Продажа офисы, нежилые помещения
- Продажа магазины, торговые помещения
- Продажа рестораны, бары, кафе
- Продажа склады, производства
- Продажа бизнес, сфера услуг
- Аренда офиса, помещений
- Аренда магазины, торговые помещения
- Аренда рестораны, бары, кафе
- Аренда склады, производства
- Аренда сфера услуг, игровой бизнес
- Аренда гаража, машиномест





























































