Производственное помещение. Аренда - 850008
2 708 р.
Аренда
Следить за ценой
Производство
Тип
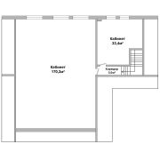
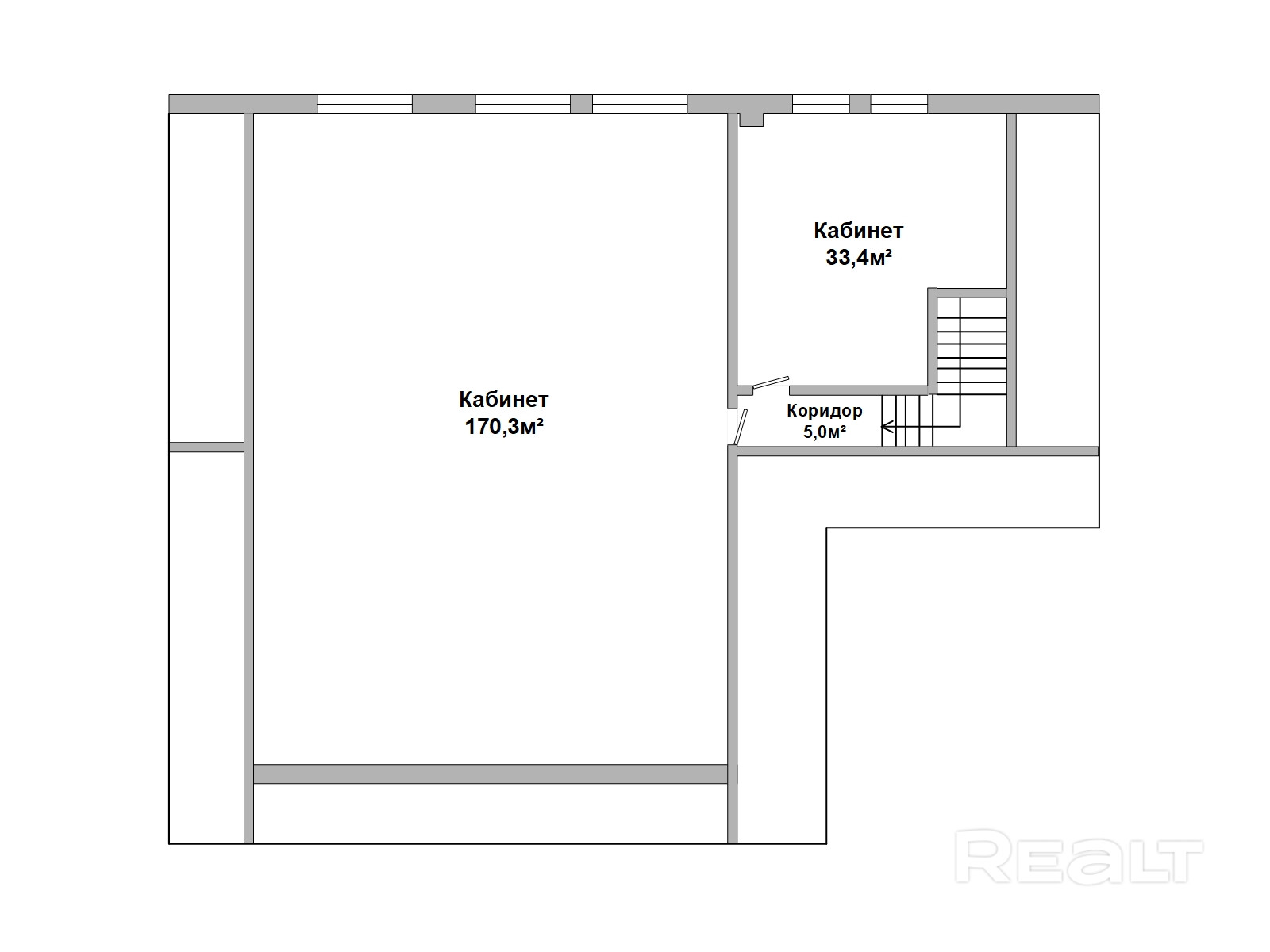
409.40 м²
Площадь
21.01.2026ID 3941240
Описание
Объявление № 850008
Производственное помещение в аренду на улице Московской. Общая площадь помещений 200 м.кв. Вторй этаж. Отдельный вход с собственной огороженной территорией. Удобный асфальтированный подъезд. Центральные коммуникации. Электрическая мощность 110 кВт. Отдельный учёт электроэнергии по этажам. Без НДС.
Договор № 8/1 от 06.11.2025, ЗАО «Альфа-Актив», УНП 290426827, лицензия № 02240/92 от 29.12.2005 на право осуществления деятельности по оказанию юридических услуг (риэлтерские услуги)
Параметры объекта
- Тип объекта
Производство
- Площадь общая
409.40 м²
- Этажность
2
- Год постройки
2025
- Отопление
Есть
- Электроснабжение
Есть
- Естественное освещение
Есть
- Вода
Есть
- Санузел
2 санузла
- Номер договора
850008 от 05.11.2025
Кравчук Николай
Контактное лицо
Примечание
Производственное помещение в аренду на улице Московской. Общая площадь помещений 200 м.кв. Вторй этаж. Отдельный вход с собственной огороженной территорией. Удобный асфальтированный подъезд. Центральные коммуникации. Электрическая мощность 110 кВт. Отдельный учёт электроэнергии по этажам. Без НДС. Договор № 8/1 от 06.11.2025, ЗАО «Альфа-Актив», УНП 290426827, лицензия № 02240/92 от 29.12.2005 на право осуществления деятельности по оказанию юридических услуг (риэлтерские услуги)
Местоположение
- Область
- Район
- Населенный пункт
- Улица
- Район города
- Координаты
52.102014, 23.775297
