Снять торговый центр, г. Барановичи, ул. Промышленная, 16
10 р./м²
Аренда
Следить за ценой
Торговый центр
Тип
945 м²
Площадь
1 из 2
Этаж
09.04.2026ID 3964842
Описание
Аренда ТЦ 945 м2 в Барановичах — под производство, ритейл или общепит!
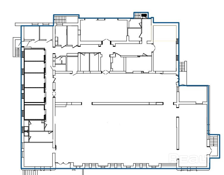
Сдается в аренду отдельно стоящее здание общей площадью 945 м2 по адресу: ул. Промышленная, 16. Идеальное решение для крупного сетевого ритейла, чистого производства или центра досуга.
Преимущества объекта:
- Состояние: Здание в отличном техническом состоянии — заезжай и работай.
- Логистика: Оборудованная зона разгрузки, удобные подъездные пути для большегрузного транспорта.
- Планировка: Просторные залы с высокими потолками и минимумом перегородок.
- Инженерные сети: Все центральные коммуникации, высокая электрическая мощность (подойдет для цеха или кухни).
- Локация: Расположение в промышленно-торговом узле города обеспечивает постоянный поток клиентов и удобство для персонала.
Параметры объекта
- Тип объекта
Торговый центр
- Площадь общая
945 м²
- Этаж / этажность
1 / 2
- Ремонт
Хороший
- Отопление
Есть
- Электроснабжение
Есть
- Вода
Есть
- Санузел
Есть
- Парковка
Есть
- Принадлежность объекта
Частная
- НДС
НДС не включен
- Расположение
В торговом центре
Оснащение
Оживленное место
Арендодатель
Елена
Контактное лицо
Примечание
Сдам в аренду здание 945 м2 под производство, розничную торговлю, общепит. Здание в отличном состоянии, есть место разгрузки. Возможно разделение помещения для двух арендаторов.
Местоположение
- Область
- Район
- Населенный пункт
- Улица
- Номер дома
16
- Координаты
53.1523, 26.0218
