Купить дом, г. Пинск, ул. Урицкого
251 442 р.
Тип
Участок
Общая
Жилая
Описание
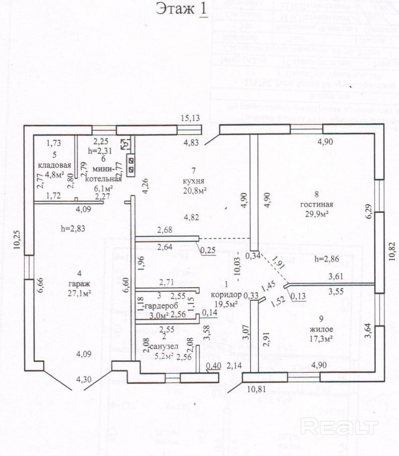
Продается жилой дом в центре города по улице Урицкого 2020 года постройки. Площадь земельного участка 0,0600 га. Общая площадь 203,8 м2, жилая 123,4 м2. Дом двухэтажный из гс/к блоков, облицован кирпичом. Отопление газовое, есть возможность поставить т/топливный котёл, центральное отопление. Водоснабжение - центральное, канализация местная. На первом этаже проведён тёплый пол и радиаторы. Из кухни выход во двор, на возможную террасу, выход в гараж площадью 2,83*6,60. Гараж отапливаемый, высота ворот больше 3м. Есть кухня, 2 комнаты, санузел, гардероб, кладовая, котельная. На втором этаже - 4 комнаты, гардероб, санузел. На участке имеются плодовые деревья. Осталось сделать отделку по вашему вкусу. Возможен обмен на дом площадью около 100 м2 или 3-комн. квартиру. Ждём ваших предложений.
Договор от 24.07.2025г. № 116/8, ОДО «Юриэлт», УНП 101214439, лицензия № 02240/8 от 17.02.2005 на право осуществления деятельности по оказанию юридических услуг (риэлтерские услуги).
Параметры объекта
- Тип объекта
Дом
- Площадь участка
6 соток
- Площадь общая
203.8 м²
- Площадь жилая
123.4 м²
- Площадь кухни
20.8 м²
- Уровней в доме
1
- Год постройки
2020
- Материал стен
Кирпичный
- Статус земли
Частная собственность
- Условия продажи
Чистая продажа
- Номер договора
116/8 от 23.07.2025
Примечание
Местоположение
- Область
- Район
- Населенный пункт
- Улица
- Координаты
52.125286, 26.120978
