Продается жилой дом в Бресте , р- н Речица, 4 комнаты
248 996 р.
Тип
Участок
Общая
Жилая
Описание
Мы работаем от собственника! Покупая этот объект, Вы не платите агентству комиссию!
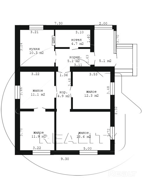
Продается жилой дом в Бресте , р- н Речица, 4 комнаты. 1970 г.п. Общ. СНБ 83.8 кв.м., общая - 78.7 кв.м., жилая - 53.9 кв.м., кухня - 10.3 кв.м.
Высота потолков - 3, 3 м.
Окна - пвх, новые межкомнатные двери. Полы - ламинат ( в коридоре и спальне), кухня - линолеум. Стены оклеены обоями и декоративная штукатурка. Входная дверь - металлическая. Потолки - натяжные. Санузел совмещен, облицован современной плиткой, теплый пол.
Отделка фасада - окрашен и оштукатурен;
Кровля - шифер;
Стены - селикатный кирпич;
Фундамент - ленточный монолит;
Материал - бетон;
Подушка: песчано- гравийная.
Коммуникации: отопление - газовый котел, газ и электричество - централизованные, водоснабжение - центральный водопровод, канализация автономная.
Участок прямоугольный - 0, 0554 га. Есть колодец, летний санузел, вокруг дома тротуарная плитка , плодовые кустарники ( малина, смородина ).
Хоз. постройки - летняя кухня, гараж и сарай. По периметру ограждение ( бетонный забор).
Отличное месторасположение.
Не далеко от центра.
Возможен обмен на 1 или 2х комнатную квартиру с доплатой.
Код объекта 02526
Договор №025/2 от 10.02.2026.
Лицензия №02240/269 выдана МЮ РБ от 21 марта 2014 года.
Параметры объекта
- Тип объекта
Дом
- Площадь участка
5.5 соток
- Площадь общая
83.8 м²
- Площадь жилая
53.9 м²
- Площадь кухни
10.3 м²
- Год постройки
1970
- Статус земли
Частная собственность
- Условия продажи
Чистая продажа
- Номер договора
02526 от 09.02.2026
Примечание
Местоположение
- Область
- Район
- Населенный пункт
- Улица
- Район города
- Координаты
52.105056, 23.656738
