Двухуровневые апартаменты с земельным участком в Центре города - 250329
274 200 р.
4 481 р.≈ 1 618 $ за м²
Общая
Жилая
Кухня
Этаж
Описание
Объявление № 250329
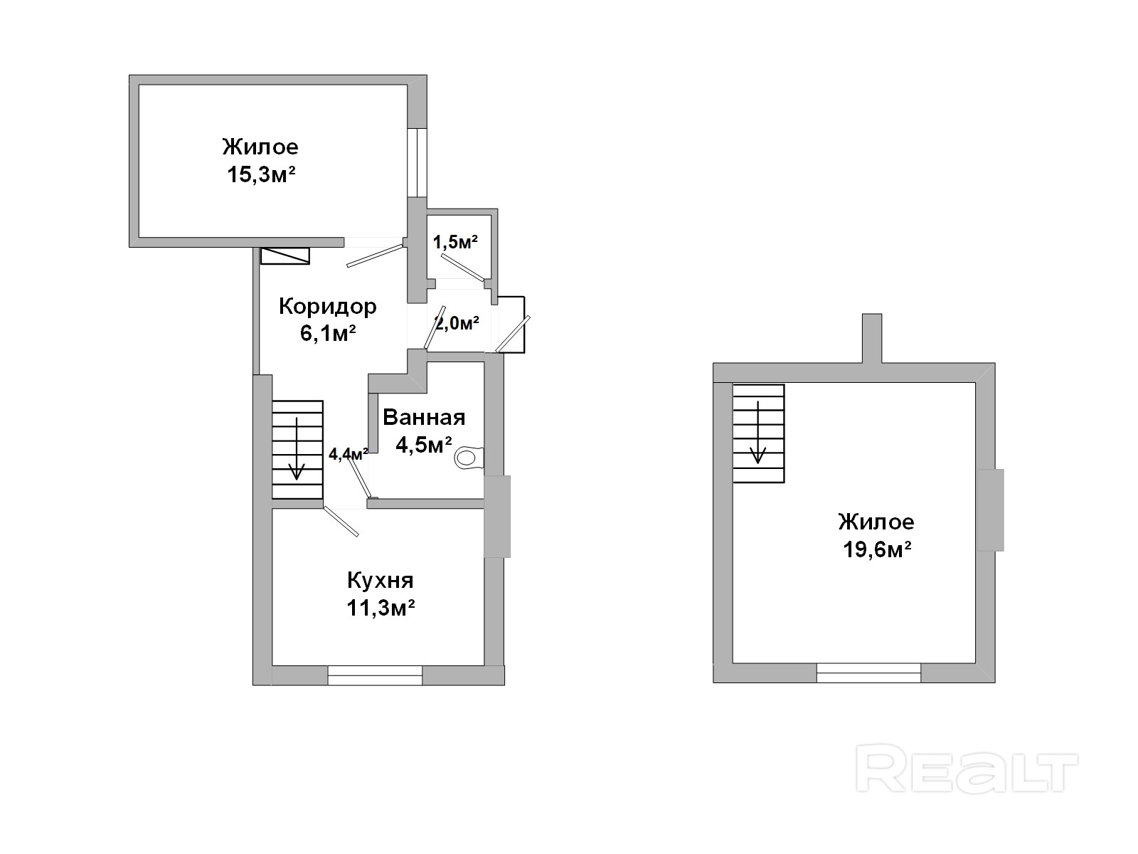
Двухуровневые апартаменты с земельным участков в самом Центре города! Квартира расположена на 1-м и 2-м этажах двухэтажного кирпичного дома 1953 г.п. Площадь 64,7/61,2/34,9/11,3 м2, с/у совмещенный. В квартире произведен полный капитальный ремонт, заменены все коммуникации (трубы, электрика), по периметру квартиры произведена дополнительная тепло- и шумоизоляция. Все коммуникации центральные, но установлена своя автономная система отопления, можно самостоятельно выбирать когда включать отопление!
Ремонт квартиры производился с использованием импортных строительных материалов и делался качественно и для себя!
На 1-м этаже расположена функциональная кухня 11,3 м2 , санузел 4,5 м2 и комната15,3 м2, на 2-м этаже спальня 19,6 м2 с французским балконом! В квартире остается мебель и бытовая техника, кухонный гарнитур из массива дерева с духовым шкафом и варочной поверхностью, встроенный холодильник. Остальная мебель может остаться по договоренности по мере необходимости новым владельцам.
Район с развитой инфраструктурой, рядом с домом расположены: продовольственный магазин, аптека, школа, детские садики, в шаговой доступности поликлиника и рынок. Хорошая транспортная развязка, все остановки на соседней улице! Лот 250329
Договор № 329/1 от 04.06.2025, ЗАО «Альфа-Актив», УНП 290426827, лицензия № 02240/92 от 29.12.2005 на право осуществления деятельности по оказанию юридических услуг (риэлтерские услуги)
Параметры объекта
- Количество комнат
2
- Раздельных комнат
2
- Площадь общая
61.2 м²
- Площадь жилая
34.9 м²
- Площадь кухни
11.3 м²
- Год постройки
1953
- Этаж / этажность
1 / 2
- Балкон
Балкон
- Санузел
Совмещенный
- Собственность
Частная
- Условия продажи
Чистая продажа
Примечание
Местоположение
- Область
- Район
- Населенный пункт
- Улица
- Район города
- Координаты
52.094672, 23.7016
