Производственное здание в д. Б.Лепесы.
239 955 р.
Тип
Площадь
Этаж
Описание
Предлагается продажа производственного здания в д. Большие Лепесы.
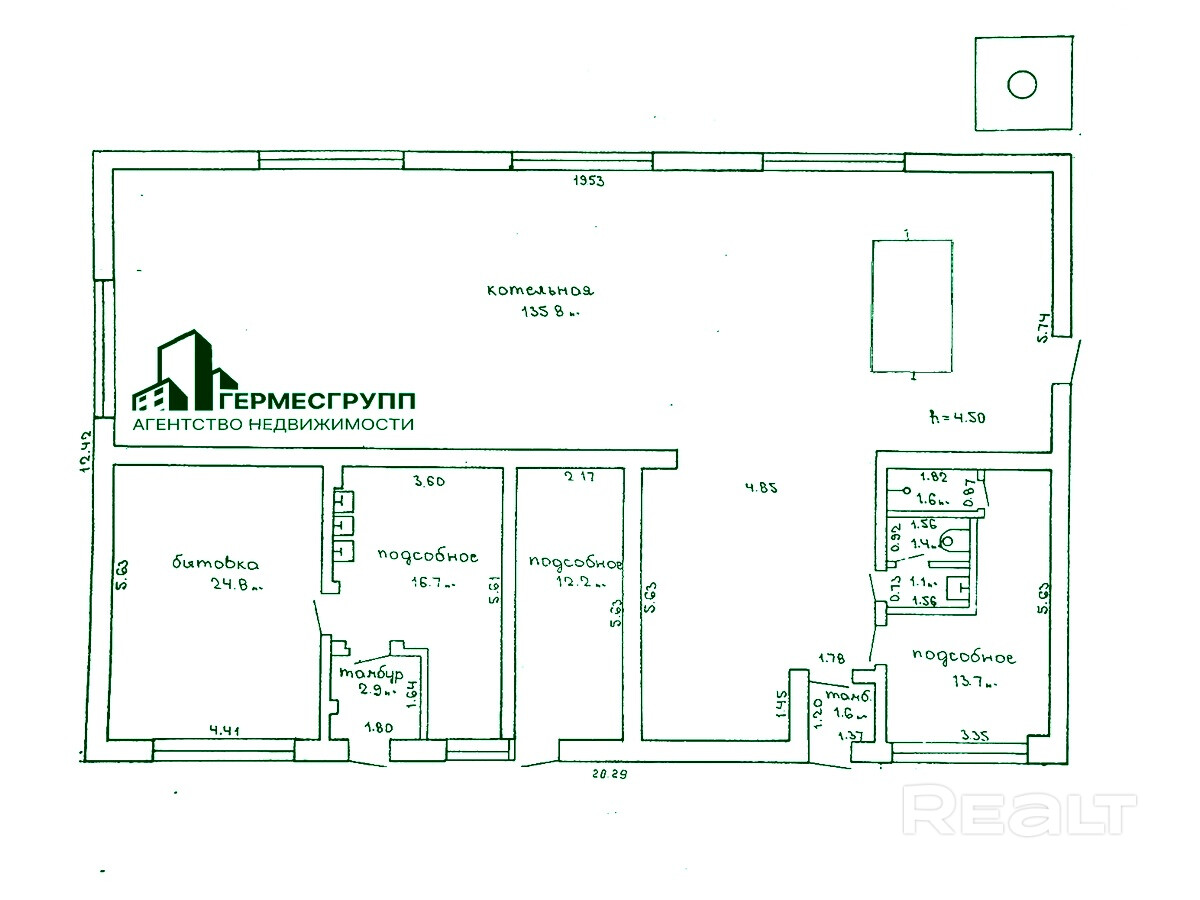
Общая площадь - 211,6 м2.
Полностью обустроенного для ведения различного вида деятельности.
В здании автономная система отопления, установлен котел работающий на отработке. Электричество - 100 кВт.
Водоснабжение центральное и скважина, канализация - местная.
В здании залита сухопрессованная стяжка пола, уложен теплый пол (не везде), стены поштукатурены, выполнено утепление крыши, установлены окна ПВХ.
Высота помещения - 4,5м. Ворота в помещении 3 х 3 м.
Участок - 14.64 соток (право аренды). Огорожен со всех сторон м/профилем, откатные ворота (5м).
Хорошие подъездные пути для большегрузов.
Работаем со всеми видами кредитов, материнским капиталом, субсидиями.
Консультации по покупке, продаже, обмену недвижимости обращайтесь по адресу: г. Кобрин, ул. Пушкина,17 пом. 14
Параметры объекта
- Тип объекта
Производство
- Площадь участка
14.64 соток
- Площадь общая
211.60 м²
- Этаж / этажность
1 / 1
- Год постройки
2016
- Раздельных помещений
5
- Материал стен
Блочный
- Высота потолков
4 м
- Ремонт
Строительная отделка
- Отопление
Есть
- Электроснабжение
Есть
- Естественное освещение
Есть
- Вода
Есть
- Санузел
Есть
- Парковка
Есть
- Принадлежность объекта
Частная
- Расположение
Частный сектор
- Номер договора
115/3 от 20.11.2025
Оснащение
Отдельный вход
Готовый бизнес
Галина Гончарук
Агент по недвижимости
Примечание
Местоположение
- Область
- Район
- Населенный пункт
- Улица
- Сельсовет
Буховичский с/с
- Координаты
52.237429, 24.387149
