Снять здание, г. Гомель, ул. Луговая, 1/В
от 2 777 р.
Аренда
Следить за ценой
Здание
Тип
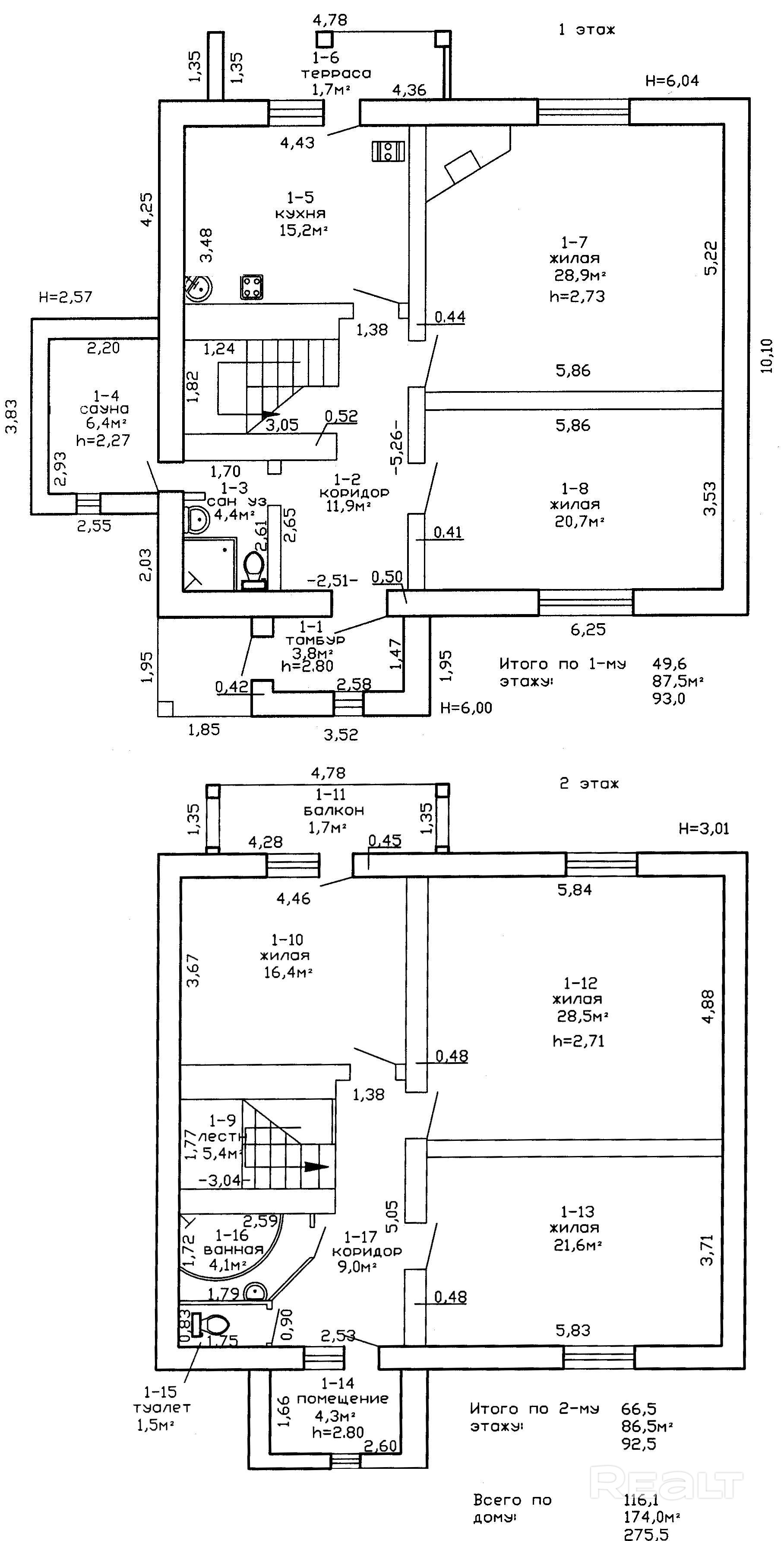
275 м²
Площадь
11.02.2026ID 1152231
Параметры объекта
- Тип объекта
Здание
- Площадь участка
10 соток
- Площадь общая
275 м²
- Год постройки
2010
- Раздельных помещений
8
- Материал стен
Кирпичный
- Ремонт
Отличный
- Отопление
Есть
- Электроснабжение
Есть
- Естественное освещение
Есть
- Вода
Есть
- Газ
Есть
- Санузел
2 санузла
- Оборудование
Есть
- Количество телефонов
1 телефон
- Парковка
Есть
- Принадлежность объекта
Частная
- НДС
НДС нет (0%)
Оснащение
Отдельный вход
Интернет
Арендодатель
Вячеслав
Контактное лицо
Примечание
Качественный ремонт на всех этажах. Экономичное отопление на газу. 380В. Участок 10 соток расположен рядом с автомагистралью российского направления, в зеленой зоне, с трех сторон из четырех соседей нет, и не будет. Удобный подъезд транспорта. Парковка на участке. Аккуратное ландшафтное оформление. Все готово для любого бизнеса. .+ 90м.кв. мансардного помещения с естественным освещением бесплатно
Местоположение
- Область
- Район
Гомельский район
- Населенный пункт
- Улица
- Номер дома
1/В
- Район города
- Микрорайон
- Координаты
52.406338, 31.024943

