Помещение в аренду (офис, торговля, услуги) на Мазурова 10Г техэтаж, 452 м2, 6 этаж
14 р./м²
Тип
Площадь
Этаж
Описание
Здание административно - торгового назначения
(здание многофункциональное --- назначение по проекту)
по улице Мазурова 10Г
ОДО "Шестой элемент" предлагает рассмотреть вариант долгосрочной аренды помещения в принадлежащем ему здании 2024г. постройки в г. Гомеле по ул. Мазурова 10Г. Аренда помещений возможна под любой вид деятельности : офис, услуги, и т.д. !!!
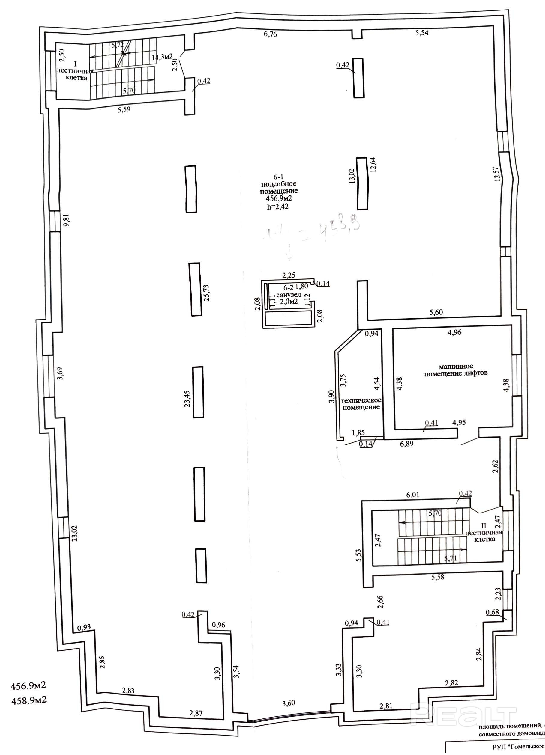
- К аренде доступно помещение на пятом техническом этаже площадью 452,3м2. Стоимость аренды за 1м2 составляет : 5 долл. за 1 м2 вкл. НДС. Назначение помещения по тех.паспорту : многофункциональное. В помещении на полах залита цементная стяжка , частично уложена плитка, стены оштукатурены, планировка свободная (можно ознакомиться в галерее фото -последние 2 фото, выкипировка из тех.паспорта), высота потолков 2410 мм. В помещении имеется сан. узел , несколько окон.
- В здании расположены четыре этажа + полноценный цокольный этаж с окнами + технический этаж с окнами.
В здании установлены 2 лифта : с цокольного до четвёртого этажа, так же присутствуют 2 лестничных марша с противоположных сторон здания.
- Электроснабжение : 2 кабеля, по 2-ой категории электроснабжения, мощность каждой кабельной линии 200кВт, канализация (в том числе отдельная для нужд общепита), центральное отопление, водопровод.
- Преимущества объекта:
- Удобное месторасположение объекта для любых целей назначения (Аренда возможна под любой другой вид деятельности) :
всего в нескольких метрах от здания находятся две вновь построенные большие и современные поликлиники (взрослая и детская), самая большая в городе жилая застройка многоэтажными высотными домами, в т.ч. свыше 20-ти этажей (это самый крупный и молодой район г. Гомеля, который застраивается до сих пор, часть высотных 20-ти этажных домов будет построена по ген.плану в 2024-2025г., в непосредственной шаговой близости находятся ещё три вновь застраиваемых микрорайона города ( 16-ый, 17-ый и 18-ый микрорайоны).
- Большая городская парковканепосредственно возле здания.
- Первая линия , центр города Гомеля, автомобильные парковки, очень высокий автомобильный и пешеходный трафик в течение всего дня , непосредственная близость остановок общественного транспорта, две-три минуты на авто до исторического центра города Гомеля.
Параметры объекта
- Тип объекта
Сфера услуг
- Площадь общая
452 м²
- Этаж / этажность
6 / 6
- Год постройки
2024
- Раздельных помещений
1
- Ремонт
Хороший
- Отопление
Есть
- Электроснабжение
Есть
- Электрическая мощность
200 кВт
- Естественное освещение
Есть
- Вода
Есть
- Санузел
Есть
- Парковка
Есть
- Принадлежность объекта
Частная
- НДС
НДС включен
- Расположение
В бизнес центре
- Новостройка
Да
Оснащение
Оживленное место
Арендодатель
Александр
Контактное лицо
Примечание
Местоположение
- Область
- Район
- Населенный пункт
- Улица
- Номер дома
10/Г
- Район города
- Координаты
52.4496, 31.0223
