Купить 2-комнатную квартиру, г. Гомель, ул. Интернациональная, 22/0
166 182 р.
2 784 р.≈ 1 005 $ за м²
Чистая продажа
Следить за ценой
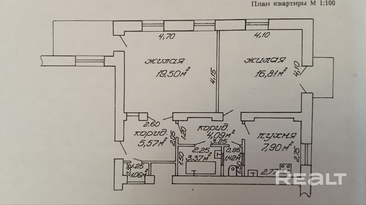
59.7 м²
Общая
36.3 м²
Жилая
2 из 2
Этаж
05.08.2025ID 3837270
Параметры объекта
- Количество комнат
2
- Раздельных комнат
2
- Площадь общая
59.7 м²
- Площадь жилая
36.3 м²
- Год постройки
1952
- Этаж / этажность
2 / 2
- Балкон
Балкон и лоджия
- Ремонт
Удовлетворительный
- Стоянка автомобиля
Есть
- Собственность
Частная
- Условия продажи
Чистая продажа
Удобства
Телефонная сеть
Продавец
Инга
Контактное лицо
Примечание
Двухкомнатная квартира, с балконом и лоджией. Свой внутренний двор, сарай с погребом. 10 минут пешком до центрального рынка. 10 минут до Гомельского парка дворцово-паркового ансамбля. 5 остановок до жд вокзала. Прямая продажа
Местоположение
- Область
- Район
- Населенный пункт
- Номер дома
22/0
- Район города
- Координаты
52.4195, 31.0037
