Купить 2-комнатную квартиру, г. Гомель, ул. Герцена, 4
119 700 р.
2 850 р.≈ 1 029 $ за м²
Общая
Жилая
Этаж
Описание
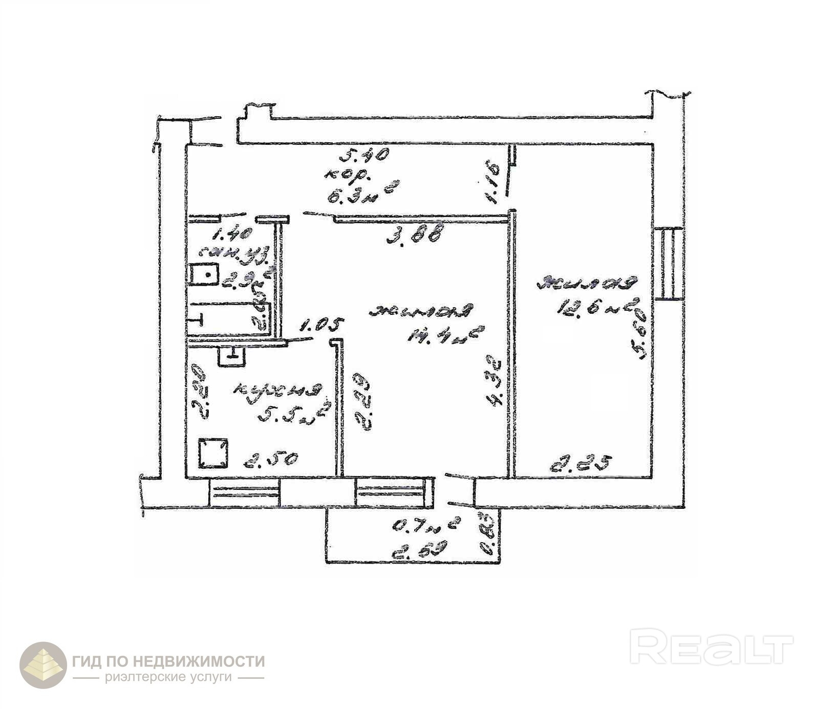
Продается 2-х комнатная квартира в г. Гомеле, ул. Герцена, д. 4 (Новобелицкий район). Этаж 3 из 4. Дом расположен в самом лучшем месте данного района. Из окон виден кинотеатр МИР. Кирпичный дом. В 2019 году был произведен капитальный ремонт. Год постройки – 1958. Общая площадь – 42 кв.м., жилая – 27 кв.м., кухня – 5.5 кв.м. В квартире везде установлены окна ПВХ, в том числе балкон застеклен. Новая входная дверь. Санузел совмещенный, обложен плиткой. В одной комнате натяжной потолок, новая межкомнатная дверь в ванной комнате.
Вся необходимая инфраструктура в шаговой доступности: школы №4,2; садики, продуктовые магазины, остановки общественного транспорта, кафе, кинотеатр, сквер с фонтаном, аптеки, Wildberries, Ozon, СДЭК, банки, поликлиника детская и взрослая, спортивная школа №8.
Тихий и уютный двор, с возможностью припарковать автомобиль.
Если Вам понравилась эта квартира, но у Вас не продан свой объект недвижимости? Поможем Вам осуществить продажу Вашего объекта, для приобретения данного варианта.
Договор на оказание риэлтерских услуг № 48/1 от 20.03.2026 года, ООО "Гид по недвижимости", УНП 491323159, г.Гомель, ул.Крестьянская, 32-2, Лицензия Министерства юстиции Республики Беларусь на осуществление риэлтерской деятельности №02240/310 от 10.06.2016 – риэлтерские услуги.
Параметры объекта
- Количество комнат
2
- Раздельных комнат
2
- Площадь общая
42 м²
- Площадь жилая
27 м²
- Год постройки
1958
- Этаж / этажность
3 / 4
- Балкон
Балкон
- Ремонт
Удовлетворительный
- Стоянка автомобиля
Есть
- Возможен торг
Да
- Собственность
Частная
- Условия продажи
Чистая продажа
- Номер договора
48/1 от 19.03.2026
Примечание
Местоположение
- Область
- Район
- Населенный пункт
- Улица
- Номер дома
4
- Район города
- Координаты
52.3929, 31.0307
