Снять помещение, г. Бобруйск, пер. Привокзальный, 10
7 р./м²
Аренда
Следить за ценой
Помещение
Тип
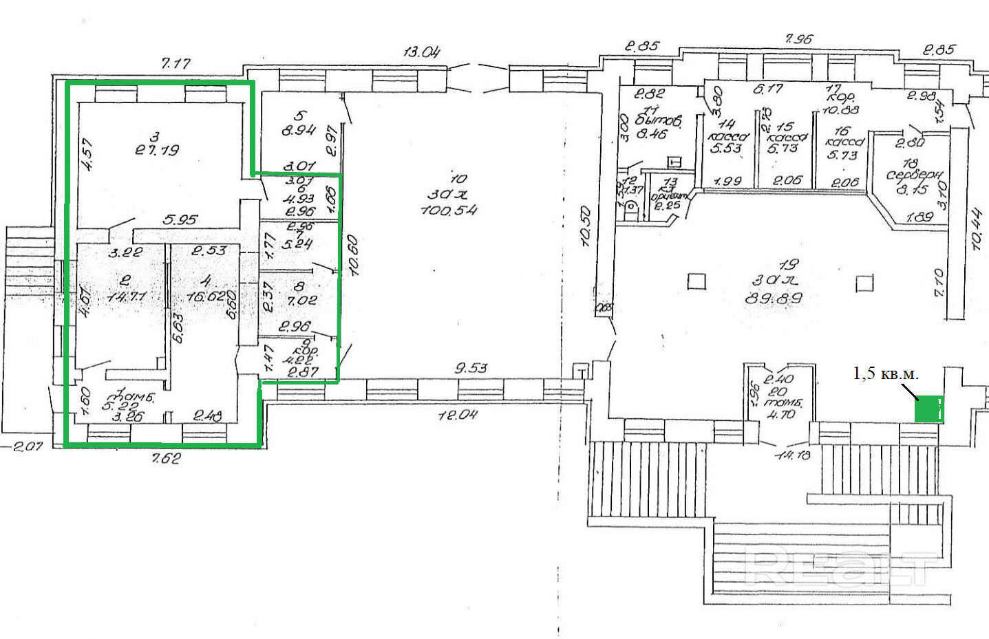
85.15 м²
Площадь
1 из 1
Этаж
20.01.2026ID 3942248
Параметры объекта
- Тип объекта
Помещение
- Площадь общая
85.15 м²
- Этаж / этажность
1 / 1
- Материал стен
Кирпичный
- Высота потолков
2.5 м
- Отопление
Есть
- Электроснабжение
Есть
- Естественное освещение
Есть
- Принадлежность объекта
Государственная
Арендодатель
Елена
Контактное лицо
Примечание
Сдаются в аренду помещения с отдельным входом с улицы в пассажирском здании станции Березина в г.Бобруйске для розничной торговли (за исключением алкогольных напитков), оказания услуг, размещения офиса, возможно небольшого производства. Имеется возможность предоставления помещений в безвозмездное пользование под оформленные договором обязательства по созданию рабочих мест в соответствии с законодательством.
Местоположение
- Область
- Район
- Населенный пункт
- Улица
- Номер дома
10
- Координаты
53.1311, 29.2495
