Стильный 2-этажный Дом 2024 года постройки. город Бобруйск!
397 373 р.
Тип
Участок
Общая
Жилая
Описание
Стильный двухэтажный дом 2024 года постройки в г. Бобруйск!
Для людей любящих уединение от городской суеты в черте города!
Участок 14,61 сотки, в частной собственности.
Дом оборудован всей необходимой техникой, системой отопления, холодной и горячей водой. Свежий ремонт!
Во всем доме установлены стеклопакеты.
Фундамент - монолитный.
Стены - кирпич.
Крыша - металлочерепица.
Отопление - газовое.
Водоснабжение - центральное, вода разведена по дому и участку.
Канализация - местная, переливная.
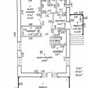
В доме 4 жилые комнаты (11,7 м.кв. - на первом этаже и 24,4 м.кв., 15,1 м.кв., 14,0 м.кв. - на втором), кухня-гостиная (40,8 м.кв.), кухня (20,0 м.кв.), два совмещенных санузела на каждом этаже, просторные гардеробные. Имеется терраса (31,2 м.кв.) для уютных вечерних посиделок, выход на которую осуществляется с кухни-гостиной.
Хорошее сообщение наземным транспортом.
Экологически чистый район, рядом вся необходимая инфраструктура, магазины, аптеки, сады и школы.
Покупка дома - великолепная семейная инвестиция на поколения.
Звоните! Ответим на все интересующие вопросы. Согласуем время просмотра!
Объект не находится под залогом, арестом или иными обременениями.
Со сроками и условиями проведения торгов (конкурсов), указанными в извещении о проведении торгов (конкурса), можно ознакомиться, в газете «ЗВЯЗДА» No 66 (30705) от «07» апреля 2026 г.
ООО «СидНеА» организация и проведение торгов, конкурсов.
Напишите нам в удобный для Вас мессенджер:
Viber | Telegram | WhatsApp
Ответим на Ваши вопросы, предоставим всю необходимую информацию.
УНП 193734126 220034, г. Минск, ул. Платонова, дом 1Б, кабинет 7, 7 этаж.
Договор № 147/1 от 12.11.2025 г.
Параметры объекта
- Тип объекта
Дом
- Площадь участка
14.61 соток
- Площадь общая
151.5 м²
- Площадь жилая
71 м²
- Площадь кухни
40.8 м²
- Уровней в доме
2
- Год постройки
2024
- Процент готовности
100
- Новостройка
Да
- Материал стен
Кирпичный
- Материал крыши
Металл
- Ремонт
Евроотделка
- Мебель
Есть
- Отопление
На газу
- Газ
Есть
- Канализация
Местная
- Электроснабжение
Есть
- Вода
Центральный водопровод
- Гараж
Есть
- Статус земли
Частная собственность
- Условия продажи
Чистая продажа
Инфраструктура
Бассейн
Ландшафтный дизайн
Хозпостройки
Рядом лес
Продавец
Примечание
Местоположение
- Область
- Район
- Населенный пункт
- Улица
- Номер дома
54/А
- Координаты
53.1566, 29.1644
