Уютный коттедж с мебелью и техникой
514 362 р.
Чистая продажа
Следить за ценой
Коттедж
Тип
13 сот
Участок
230 м²
Общая
23.05.2026ID 4092067
Описание
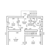
Продается отличный уютный трехуровневый дом 2020 года постройки, в центре г. Могилёва не далеко от Днепра. Дом расположен на большом участке 13,08 соток, что дает возможность зонировать пространство на Ваше усмотрение. Участок огорожен забором из металлопрофиля, установлены двое автоматических ворот и калитка. Дом выполнен из газосиликатных блоков, три армирующих пояса, фундамент блочный. Все работы выполнены по проекту, из качественных материалов и с соблюдением всех технологий. Площадь дома (м2) общая/жилая/кухня: 230,6/81,8/16,5, - первый этаж: кухня (16,5 кв.м.), оборудованная встроенным гарнитуром со всей необходимой бытовой техникой, диваном и столом со стульями; большая гостиная (24,1 кв.м), угловой диван из экокожи и телевизор; санузел совмещенный (5,8 кв.м.), установлена ванна, унитаз, тумба с умывальником, зеркало, стиральная машина; жилая комната (10,3 кв.м.); коридор (14,2 кв.м.) с двумя вместительными шкафами-купе; - второй этаж: коридор (11,6 кв.м оборудованная гардеробная с зеркалом (7,4 кв.м.); спальня (18,6 кв.м.), спальный гарнитур и небольшой угловой диван; две жилых комнаты (16,8 кв.м., 11,2 кв.м.); санузел совмещенный (6,4 кв.м.), установлена ванна и унитаз; - окна ПВХ; - межкомнатные двери экошпон; - входная дверь металлическая; - покрытие на полу ламинат, линолеум и плитка, частично с подогревом; - на стенах-обои; - высота потолков 2,68 м. - все коммуникации центральные. Под домом находится полноценный этаж, где расположены подсобные помещения, можно их оборудовать по Вашему желанию, высота потолков 2,55 м. Ремонт выполнен в 2021 году в едином стиле в светлых тонах с применением современных качественных материалов. Коттедж продается практически со всей мебелью и бытовой техникой, представленной на фотографиях. Рядом с домом есть вся необходимая для жизни инфраструктура: детские сады, школа, лицей, рынок, городской парк, парк Подниколье, городской пляж, храм, два музея, больница, поликлиника, аптека, отделение банка, почта, парикмахерская, торговый ряд, продуктовые и промышленные магазины и другое. Удобные подъездные пути, асфальтированный подъезд, недалеко остановки общественного транспорта, можно без труда добраться в любую точку города. Хорошие спокойные соседи. Прекрасное сочетание - центр города со всей инфраструктурой и в тоже время можно уединиться от городской суеты и насладиться природой, речкой и чистым воздухом. Разумный торг!
Параметры объекта
- Тип объекта
Коттедж
- Площадь участка
13 соток
- Площадь общая
230 м²
- Площадь кухни
16.5 м²
- Уровней в доме
3
- Год постройки
2020
- Процент готовности
100
- Ремонт
Евроотделка
- Статус земли
Пожизненно наследуемое владение
- Возможен торг
Да
- Условия продажи
Чистая продажа
- Номер договора
58/1 от 15.03.2026
Иван, Татьяна
Контактное лицо
Примечание
Продается отличный уютный трехуровневый дом 2020 года постройки, в центре г. Могилёва не далеко от Днепра. Дом расположен на большом участке 13,08 соток, что дает возможность зонировать пространство на Ваше усмотрение. Участок огорожен забором из металлопрофиля, установлены двое автоматических ворот и калитка. Дом выполнен из газосиликатных блоков, три армирующих пояса, фундамент блочный. Все работы выполнены по проекту, из качественных материалов и с соблюдением всех технологий.
Местоположение
- Область
- Район
- Населенный пункт
- Улица
- Номер дома
41
- Район города
- Координаты
53.890489, 30.319057
