Купить торговое помещение, г. Бобруйск, ул. Рокоссовского, 84
1 666 320 р.
Тип
Площадь
Этаж
Описание
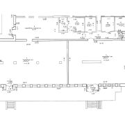
Продажа отдельно стоящего здания площадью 709,9 м2 по адресу г. Бобруйск, ул. Рокоссовского 84 с якорными арендаторами.
Помещение сочетает в себе комбинированный формат открытого пространства и отдельных кабинетов.
Назначение - "Здание специализированное розничной торговли". Здание сдано в аренду под магазины "Fix Price" и "Остров Чистоты".
Отделка:
- напольное покрытие: плитка;
- отделка стен: окрашены;
- потолок типа Armstrong.
Инженерные системы и коммуникации:
- кондиционирование;
- центральное водоснабжение и отопление;
- пожарная сигнализация.
Result Estate — ваш надёжный партнёр на рынке недвижимости.
20 лет опыта наших агентов по недвижимости — это ваш ключ к идеальной сделке: глубокое знание рынка, эксклюзивные предложения, юридическая безопасность и индивидуальный подход. Мы экономим ваше время, деньги и нервы, помогая купить, продать недвижимость быстро, выгодно и с уверенностью в результате!
Result Estate — ваш надёжный партнёр на рынке недвижимости.
20 лет опыта наших агентов по недвижимости — это ваш ключ к идеальной сделке: глубокое знание рынка, эксклюзивные предложения, юридическая безопасность и индивидуальный подход. Мы экономим ваше время, деньги и нервы, помогая купить, продать недвижимость быстро, выгодно и с уверенностью в результате!
Все актуальные предложения в одном месте — смотрите на нашем сайте.
Опишите свои пожелания — и мы оперативно подберем для вас лучшие варианты!
ООО «Результативная недвижимость», лицензия выдана Минюстом 26.09.2023 № 02240470, УНП 193703497
Связываясь с нами по данному объекту, Вы даете свое согласие на сбор и обработку персональных данных автоматически.
Параметры объекта
- Тип объекта
Торговое помещение
- Площадь общая
709.90 м²
- Этаж
1
- Отопление
Есть
- Электроснабжение
Есть
- Вода
Есть
- Санузел
Есть
- Принадлежность объекта
Частная
- НДС
НДС включен
- Номер договора
169/1 от 31.08.2025
Оснащение
Отдельный вход
Примечание
Местоположение
- Область
- Район
- Населенный пункт
- Улица
- Номер дома
84
- Координаты
53.1666, 29.1852
