Если на руках около 25 тысяч долларов. Смотрим бюджетные однушки недалеко от метро
4258Какие квартиры в Минске можно купить в лизинг, если на первый взнос есть около 25 тысяч долларов. Сегодня подберем под такой запрос однушки недалеко от метро, в которые можно заехать сразу после покупки. Это будут бюджетные по сегодняшним меркам варианты — 80−90 тысяч долларов. Просчитать условия лизинга можно в каждом конкреном объявлении, а оставить заявку на бесплатную консультацию по ссылке.
10 минут от «Академии наук» и «Площади Якуба Коласа»
Эта однушка находится между двумя станциями метро — «Академией наук» и «Площадью Якуба Коласа». До любой из станций около 900 метров или 10 минут пешком.
В кухне большое окно, в гостиной — выход на застекленную лоджию. Из мебели есть шкаф-купе, диван и комод. Санузел раздельный. Есть стиральная машина. Установлена ванна.
Квартиру оценили в 81 тысячу долларов (2 440 долларов). Минимальный первый взнос для покупки в лизинг — около 23 тысяч долларов. В объявлении — условия.
13 минут до «Каменной Горки»
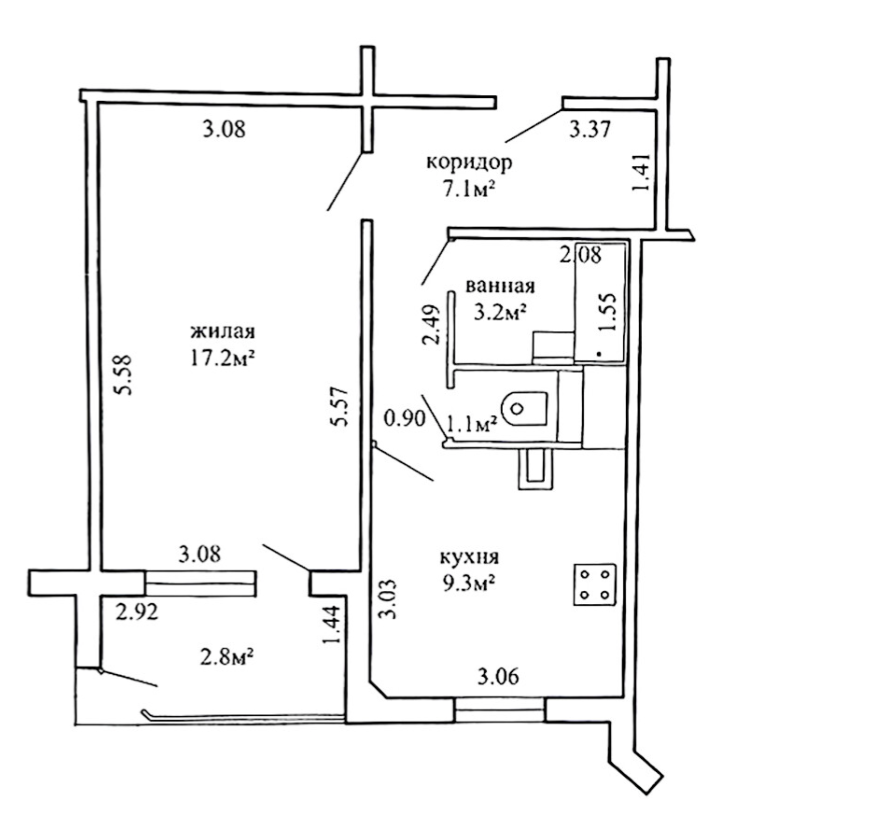
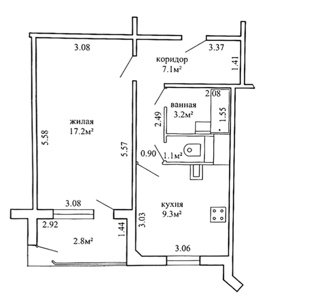
Однокомнатная квартира на первом этаже девятиэтажки 1986 года по адресу Одинцова, 77 корпус 3. Это около километра или минут 13-15 до станции метро «Каменная Горка».
Общая площадь — 37 квадратов, жилая — 17 квадратов, кухня — 7 метров. По словам продавца, в квартире сделали ремонт в прошлом году. В прихожей установлен шкаф-купе. В жилой комнате хватает места для дивана и кровати-трансформера. Санузел раздельный. Установлена ванна.
Такая однушка обойдется в 86 тысяч долларов, а метр в ней стоит 2 312 долларов. Минимальный первый взнос для покупки в лизинг — около 24 тысяч долларов. Какими будут ежемесячные платежи в таком случае, можно просчитать в объявлении.
10 минут от «Малиновки»
Однокомнатная квартира в десяти минутах пешком от станции метро «Малиновка». Девятый этаж девятиэтажки по адресу Наполеона Орды, 25. Над квартирой есть техэтаж. Дом построен в 2008 году. Выглядит вот так.
На днях стоимость квартиры снизили, сейчас она продается за 87 тысяч долларов. Квадрат выходит 2 138 долларов. Желающим купить квартиру в лизинг на руках надо иметь 25 тысяч долларов. В объявлении — условия лизинга.
5 минут от «Кунцевщины»
Эта квартира находится на восьмом этаже девятиэтажного дома по адресу Бурдейного, 25 — до станции метро «Кунцевщина» меньше 500 метров. Дом 1981 дома.
В кухне новая техника — холодильник, духовой шкаф, варочная панель и вытяжка.
Общий метраж квартиры — 36 квадратов, а жилая площадь — 17 метров.
Стоимость однушки — 88 500 долларов. Метр — 2 458 долларов. При покупке в лизинг минимальный первый взнос — чуть больше 25 тысяч долларов. В объявлении — калькулятор для подсчета условий лизинга.
8 минут до «Пушкинской»
Последняя квартира подборки — однушка на первом этаже девятиэтажного дома 1975 года на Одоевской, 30. До станции метро «Пушкинская» — 700 метров или минут 8 пешком. До «Спортивной» можно дойти за 15 минут.
В прихожей установлен шкаф-купе. В жилой комнате стоит двуспальная кровать. Есть выход на лоджию. Кухонные фасады выполнены в сером цвете. Санузел раздельный. Продавец говорит, что в квартире недавно сделали ремонт.
Недавно квартира подешевела. Сейчас ее стоимость — 89 900 долларов. Метр — 2 611 долларов. В объявлении калькулятор, в котором можно просчитать комфортные условия лизинга. Минимальный первый взнос — чуть меньше 26 тысяч долларов.
Читайте также:
В первом доме Северного Берега продается квартира с дофаминовым интерьером. Что по цене?
«Метр в хрущевках доходит до трех тысяч долларов». Что творится с квартирами в Минске
В этом магазине продают только один продукт — и там постоянно очереди! Некоторые стоят по 40 минут
Это наша новая стабильность. Что происходит с продажей квартир в Минске и что нас ждет летом
85313
Застройщики переоценили спрос на студии. Что будет с ценами на новостройки этим летом
52634
10 самых интересных минских строек жилья в 2026 году. Панельные, монолитные, элитные и эконом
35227
Красивый дом у Минского моря. Минчанин показал, как классно жить за городом
16807
«Фиксируем завышенные цены». Что происходит с квартирами в Минске прямо сейчас
7065
Овощи так и попрут: как и из чего лучше сделать высокие грядки. Изучили опыт
15524
Вне времени и моды: усадьба в Тарасово с клинкерным фасадом, домом-баней и прудом. Побывали внутри
22194
Включить стиральную машину — это тоже работа. Как делить домашние обязанности и не ссориться из-за быта
1606
Видео этих агентов по недвижимости набирают по 50 тысяч просмотров. Что они делают?
15309
«Переезжать сюда насовсем желания нет». Узнали, как живется в брежневках в Чижовке
77681
Кредит, использование семейного капитала, уплата налогов. В каких случаях нужно вызывать профессионального оценщика недвижимости?
5862
Что такое альтернативные сделки или как переехать в квартиру побольше, не доплатив ни копейки?
9920
Минчане построили дом из двойного утепленного бруса с "подземной" баней. Съездили посмотреть, что у них получилось
64027
Нашли самую маленькую однушку в Минске с ремонтом и мебелью. И что по цене?
63440
За два участка боролись по 74 и 72 человека - и это новый рекорд! Рассказываем об итогах земельного аукциона в Минском районе
29973
Многие здесь работают в «Газпроме». Побывали в тихом поселке под Минском, о котором мало кто знает
52401
Не хватает на жилье в Минске? Собрали недорогие квартиры в городах-спутниках, где сразу можно жить
31706
Есть и за 7 тысяч. Нашли крепкие хаты до 20 тысяч долларов возле озер и леса
92290
"Когда переехали - мама заплакала". Как жили раньше и как живут сейчас в Шабанах - криминальном районе Минска 90-х
80457
До 50 тысяч долларов. Как выглядят и сколько стоят недорогие двушки в Минске, где сразу можно жить
84124- Бизнес центры
- Торговые центры
- Продажа гаражи, машиноместа
- Продажа офисы, нежилые помещения
- Продажа магазины, торговые помещения
- Продажа рестораны, бары, кафе
- Продажа склады, производства
- Продажа бизнес, сфера услуг
- Аренда офиса, помещений
- Аренда магазины, торговые помещения
- Аренда рестораны, бары, кафе
- Аренда склады, производства
- Аренда сфера услуг, игровой бизнес
- Аренда гаража, машиномест






































































