Помещение ул. Промышленная, 7Б/4
от 1 840 р./м²
Тип
Площадь
Этаж
Описание
Продается отдельно стоящее помещение на втором этаже.
Назначение : административно-торговое.
Технические характеристики:
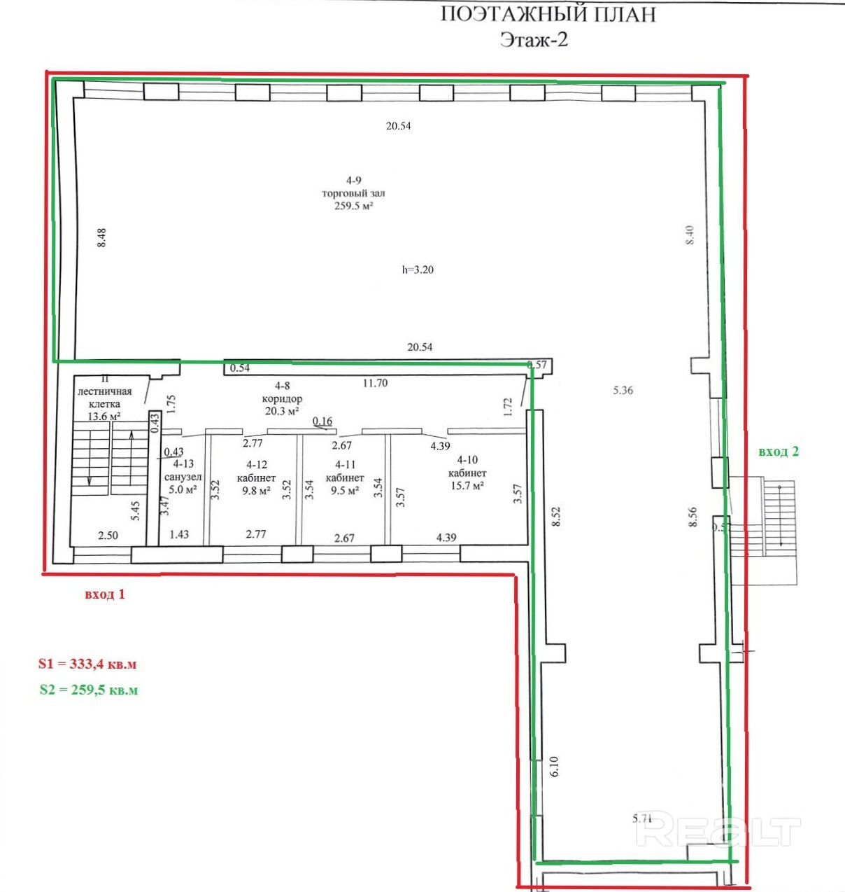
- S1 (см.план) = 333,4 м2 ; S2 (см.план) = 259,5 м2
- отдельный вход
- хорошее естественное освещение (семь окон в зале)
-Высокие потолки ( h= 3,2 м.)
- коммуникации: электричество, отопление, канализация, водоснабжение.
- наличие с/узла.
- оборудованные кабинеты
Особенности помещения:
- Единая площадь (S2 зал), позволяющая адаптировать пространство под Ваши потребности | направление бизнеса.
- Возможность разделения на несколько зон (офисы, кабинеты, зоны для встреч и т. д)
- хорошие, асфальтированные подъездные пути к зданию.
- наличие парковочных мест для Вас и Ваших клиентов.
Здание 1973 года постройки, в 2020 году была произведена реконструкция.
Торговое помещение основательно отделано качественными материалами, отличное состояние напольной плитки и стен – всё в светлых тонах.
Готовность помещения = 100 %, от Вас только наполнение содержимым под направление своего бизнеса!
Развивайте свой бизнес в комфортном и удобном пространстве!
Для приобретения помещения Мы предлагаем два варианта:
1. S1 (весь этаж).
2. S2 (зал с выделением отдельной площади и отдельным входом).
Готовы с Вами к переговорам для поиска оптимального решения, которое будет учитывать интересы обеих сторон.
Есть возможность арендовать помещение как полностью, так и частично (смотрите раздел «Аренда»)
Звоните прямо сейчас для организации просмотра!
Параметры объекта
- Тип объекта
Помещение
- Площадь общая
333.40 м²
- Этаж / этажность
2 / 2
- Высота потолков
3 м
- Ремонт
Хороший
- Отопление
Есть
- Электроснабжение
Есть
- Естественное освещение
Есть
- Вода
Есть
- Санузел
Есть
- Парковка
Есть
- Номер договора
9/11 от 19.01.2026
Оснащение
Отдельный вход
Примечание
Местоположение
- Область
- Район
- Населенный пункт
- Улица
- Номер дома
7/4
- Координаты
53.1538, 26.019
