Сдается в аренду торговое помещение на ул. Социалистической.40.
3 600 р.
Аренда
Следить за ценой
Торговое помещение
Тип
360.90 м²
Площадь
1 из 2
Этаж
04.12.2025ID 3965019
Описание
Сдается в аренду торговое помещение на ул. Социалистической.40.
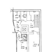
Торговое помещение расположено на первом этаже.
Имеет отдельный вход, естественное освещение.
Центральное отопление, санузел, электричество 380/220, рампа.
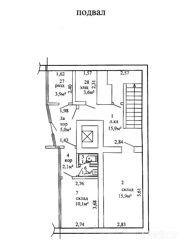
Имеет подвальное помещение, которое идеально подходит под склад.
Оживленное место, находится рядом с центральным рынком.
Вместительная парковка.
НДС включен в стоимость аренды.
Лицензия: №02240/362 МЮ РБ, 31.07.2018
Параметры объекта
- Тип объекта
Торговое помещение
- Площадь общая
360.90 м²
- Этаж / этажность
1 / 2
- Год постройки
1973
- Материал стен
Кирпичный
- Ремонт
Нормальный
- Отопление
Есть
- Электроснабжение
Есть
- Естественное освещение
Есть
- Вода
Есть
- Санузел
Есть
- Парковка
Есть
- Принадлежность объекта
Частная
- НДС
НДС включен
- Юридический адрес
Да
- Номер договора
166/1А от 28.11.2025
Оснащение
Видеонаблюдение
Марина Мартинович
Риэлтер
Примечание
Сдается в аренду торговое помещение на ул. Социалистической.40.
Местоположение
- Область
- Район
- Населенный пункт
- Улица
- Номер дома
40
- Координаты
53.1319, 29.228
