Купить 2-комнатную квартиру, г. Бобруйск, ул. Минская, 62
132 706 р.
2 352 р.≈ 842 $ за м²
Общая
Жилая
Кухня
Этаж
Описание
В самом центре города продается 2-комнатная квартира с черновой отделкой по улице Минская, д. 62. Расположена на 2\14 этажного монолитного дома 2024 года постройки. В квартире установлена металлическая входная дверь, панорамные окна ПВХ на лоджии, закрытая территория, видеонаблюдение. Черновая отделка позволяет воплотить в жизнь все ваши дизайнерские задумки. Квартира светлая и теплая. Объект расположен в районе с развитой инфраструктурой. В шаговой доступности: магазины, рынок « Октябрьский», школы, детский сад, остановка общественного транспорта.
Рассмотрим все формы расчета. Приглашаем на просмотр!
Параметры объекта
- Количество комнат
2
- Раздельных комнат
2
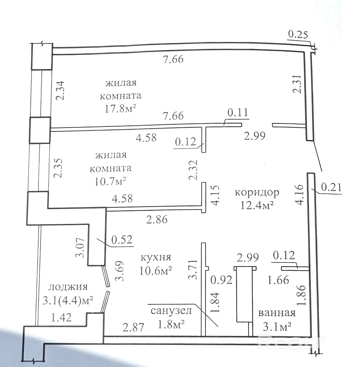
- Площадь общая
56.4 м²
- Площадь жилая
28.5 м²
- Площадь кухни
10.6 м²
- Год постройки
2024
- Этаж / этажность
2 / 19
- Тип дома
Силикатные блоки
- Балкон
Лоджия
- Ремонт
Хороший
- Высота потолков
2.5 м
- Санузел
Раздельный
- Собственность
Частная
- Условия продажи
Чистая продажа
- Номер договора
55/1 от 23.03.2026
Примечание
Местоположение
- Область
- Район
- Населенный пункт
- Улица
- Номер дома
62
- Координаты
53.1527, 29.2251
