Скачать приложение Realt
Скачать

2-комнатная квартира по ул. А.Кулешова, 12

201 888 р.

72 000 $

3 712 р. 1 324 $ за м²

Чистая продажа
Следить за ценой
54.4 м²

Общая

29.4 м²

Жилая

9.2 м²

Кухня

9 из 10

Этаж

3 часа назадID 4104931
pdf
Обзор по новостройкам Минска и пригорода
Цены и наличие квартир, условия покупки и оплаты

Описание

В продаже 2-комнатная квартира по адресу: г. Могилев, ул. А.Кулешова, 12, напротив ЖК Зодиак, на 9 этаже 10-этажного панельного дома 2010 года постройки.
Прекрасная локация, экологичный район Областной больницы, Спутник: отличное транспортное сообщение, вся инфраструктура в шаговой доступности (школа с бассейном, два дет.сад, в т.ч. с бассейном, Евроопт через дорогу, в целом: различные ТЦ, магазины, пункты питания, мед.центр, игровые площадки и т.д.), Печерский лесопарк, велодорожки, дорожки для прогулок.
В непосредственной близости остановка общественного транспорта (1 минута ходьбы).
Большая парковка.

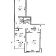
Квартира общей площадью 54,4 кв. м (+ 2,6 кв. м. застеклённая лоджия). (см. фото тех. паспорта).
Квартира не угловая, теплая, сухая, улучшенной планировки, комнаты не проходные. Все окна - ПВХ. Высота потолков - 2,6 м.

Квартира продаётся с представленной мебелью и техникой. Детали состояния квартиры видны на фото.
Деревянное напольное покрытие уложено качественно, не скрипит.

Остальную информацию в
Вы можете получить по номеру, указанному в объявлении. Можем выслать больше фотографий по личному запросу. Приглашаем на показ по предварительной договоренности.

При необходимости поможем в продаже Вашей недвижимости для покупки этой.

Договор 49/16 от 22.04.2026г.

ОДО «Юриэлт», УНП 101214439
Зарегистрировано решением Минского горисполкома № 1557 от 28.12.2000
г.Минск, ул.Комсомольская, д.5А-7
Лицензия Министерства юстиции Республики Беларусь № 02240/8 от 17.02.2005 (бессрочная) на право осуществления деятельности по оказанию юридических услуг - риэлтерских услуг.

Параметры объекта

  • Количество комнат

    2

  • Раздельных комнат

    2

  • Площадь общая

    54.4 м²

  • Площадь жилая

    29.4 м²

  • Площадь кухни

    9.2 м²

  • Год постройки

    2010

  • Этаж / этажность

    9 / 10

  • Тип дома

    Панельный

  • Балкон

    Лоджия

  • Санузел

    Раздельный

  • Собственность

    Частная

  • Условия продажи

    Чистая продажа

  • Номер договора

    49/16 от 21.04.2026

Примечание

В продаже 2-комнатная квартира по адресу: г. Могилев, ул. А.Кулешова, 12, напротив ЖК Зодиак, на 9 этаже 10-этажного панельного дома 2010 года постройки.

Местоположение