Снять офис, г. Борисов, ул. Орджоникидзе, 5/А
4 - 6 р./м²
Аренда
Следить за ценой
Офис
Тип
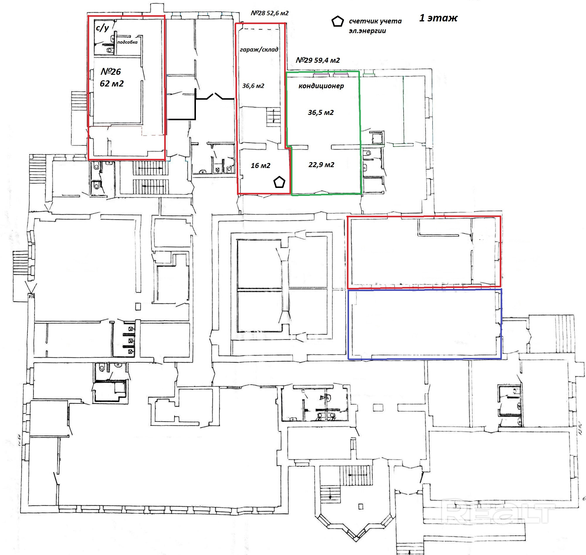
59 - 300 м²
Площадь
14.05.2026ID 1017533
Параметры объекта
- Тип объекта
Офис
- Площадь общая
59 - 300 м²
- Этажность
2
- Раздельных помещений
1 - 5
- Материал стен
Кирпичный
- Ремонт
Нормальный
- Отопление
Есть
- Электроснабжение
Есть
- Естественное освещение
Есть
- Вода
Есть
- Санузел
Есть
- Парковка
Есть
- Принадлежность объекта
Частная
- НДС
НДС включен
- Расположение
В бизнес центре
- Юридический адрес
Да
Арендодатель
Траст Брокер
Контактное лицо
Примечание
Сдаются помещения на первом и втором этаже. Оборудованы кондиционерами. В некоторых помещениях есть доступ к воде и канализации. Есть помещение с отдельным санузлом. Так же есть помещение для размещения спортивной секции или танцевального зала с высокими потолками и раздевалкой. Возможны арендные каникулы. Приглашаем на просмотр.
Местоположение
- Область
- Район
- Населенный пункт
- Улица
- Номер дома
5/А
- Направление
Московское, 63.5 км от МКАД
- Координаты
54.2273, 28.513


