Аренда под офис, услуги, торговое - г. Минск, ул. Тиражная, 150
19 р./м²
Тип
Площадь
Этаж
Описание
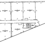
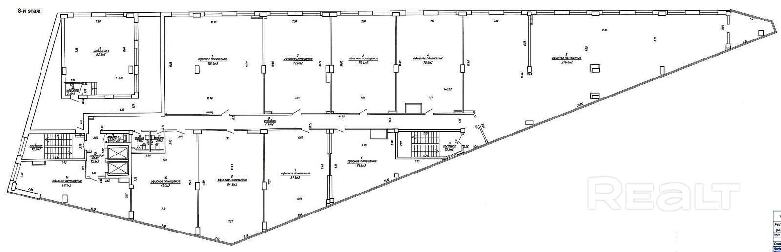
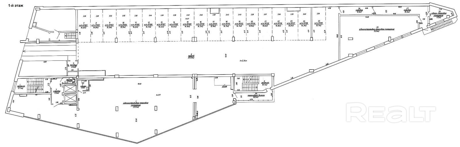
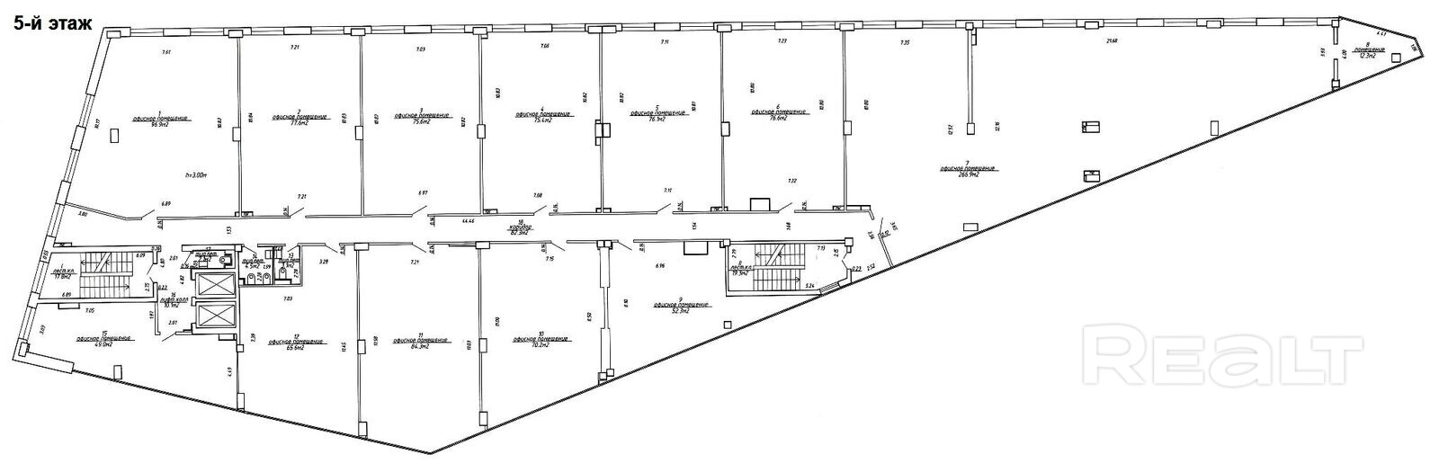
Административно - торговые помещения. Общепит. Машино-места
г. Минск, ул. Тиражная, 150
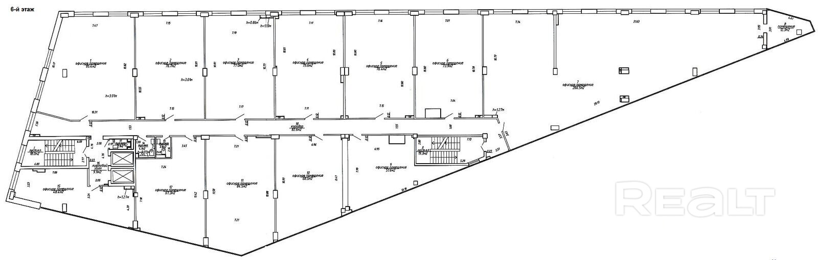
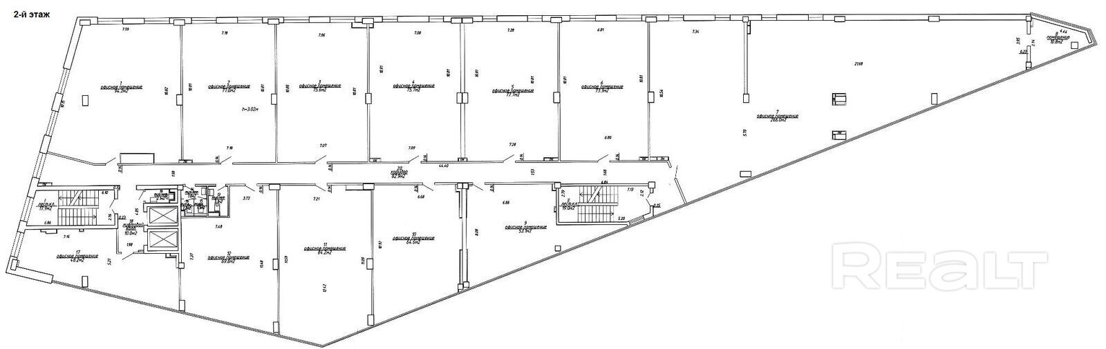
Площади: от 65,3 до 1015,8 м2
3 этаж - 279,5 м2
4 этаж - 76,5 м2, 76,6 м2, 76,1 м2, 77,3 м2, 280 м2, 65,3 м2, 84,5 м2
Арендатор не оплачивает услуги риэлтерской организации!
Помещения расположены в бизнес-центре «Орлан»:
• современный лаконичный интерьер, панорамное остекление;
• система кондиционирования Dankin,
• швейцарские лифты «Schindler»;
• доступ 24/7;
• гостевая парковка, подземный паркинг;
• удобная инфраструктура, благоприятная экологическая среда, рядом парк и сквер, Цнянское водохранилище.
Подробнее см. на САЙТЕ www.silvan7800.by
Договор № 13/3а от 13.02.2025 по 12.02.2027
ООО «Сильван-Инвест», УНП 192927433, лицензия №02240/383, Министерство юстиции РБ, 24.09.2019.
Параметры объекта
- Тип объекта
Офис
- Площадь общая
65.30 - 11341.10 м²
- Этаж / этажность
3 / 8
- Год постройки
2015
- Материал стен
Блочный
- Ремонт
Хороший
- Отопление
Есть
- Электроснабжение
Есть
- Естественное освещение
Есть
- Вода
Есть
- Санузел
Есть
- Количество телефонов
Больше пяти
- Парковка
Есть
- Принадлежность объекта
Частная
- НДС
НДС включен
- Расположение
В бизнес центре
- Юридический адрес
Да
- Номер договора
13/3а от 12.02.2025
Оснащение
Кондиционер
ООО "Сильван-Инвест"
Контактное лицо
Примечание
Местоположение
- Область
- Населенный пункт
- Улица
- Номер дома
150
- Район города
- Микрорайон
- Координаты
53.9423, 27.567


