Аренда офиса ул. Платонова 1Б.
8 008 р.
33 р.≈ 12 $ за м²
- г. Минскул. Платонова, 1/Б
- Площадь Победы
- На карте
Тип
Площадь
Этаж
Описание
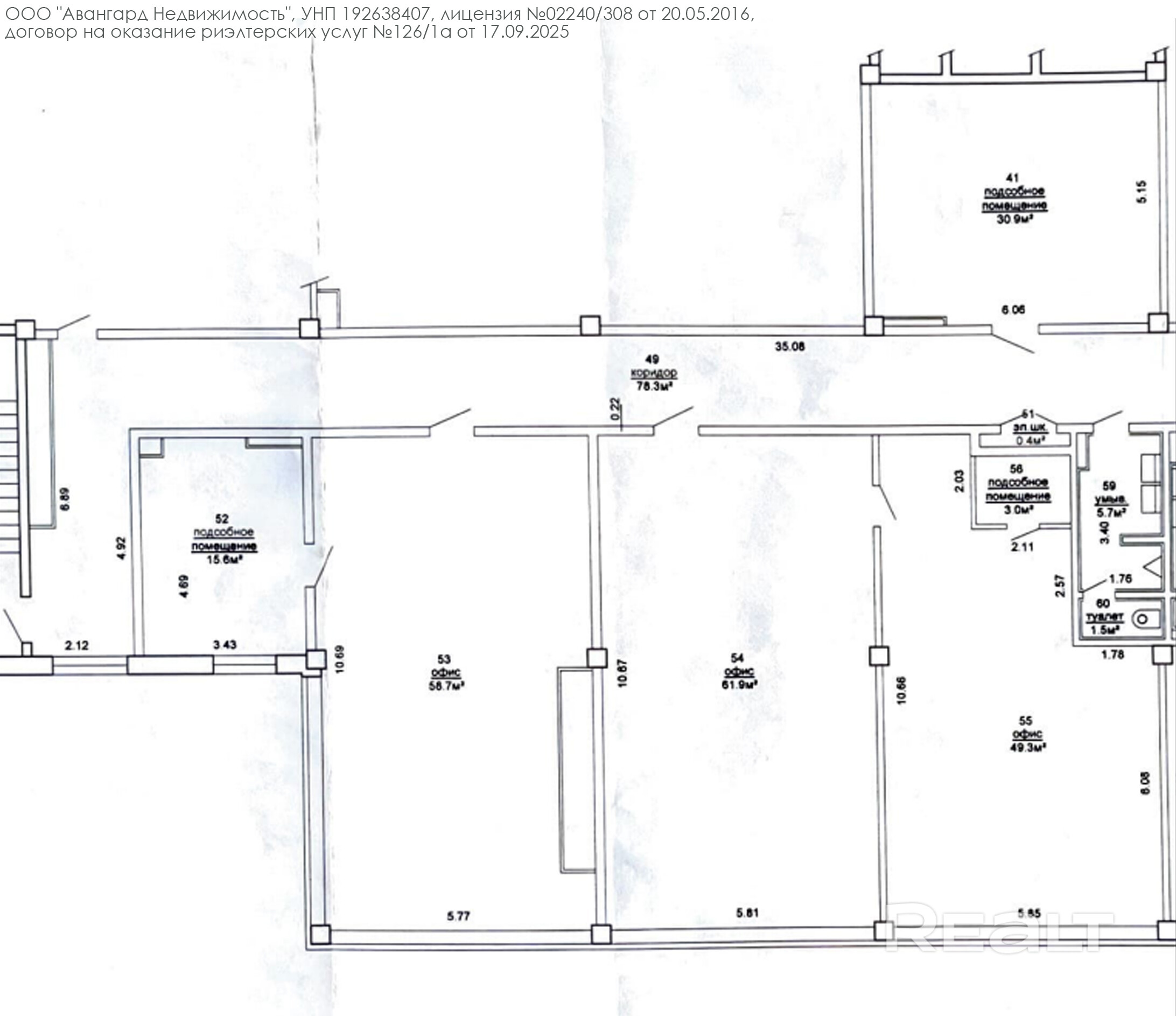
Представляем вашему вниманию офисное помещение по ул. Платонова 1Б
Общая площадь помещения 240 м2.
Офис состоит из 4 помещений + подсобное помещение+ санузел.
Хорошая офисная отделка.
Коммуникации:
- Принудительная приточно-вытяжная вентиляция;
- Центральное отопление;
- Пожарно-охранная сигнализация;
- Видеонаблюдение;
- Кондиционирование;
- Оптоволокно (2 провайдера: «Белтелеком», «А1»);
- Телефонные линии.
Доступ в офис возможен 24/7. Рядом точки общественного питания. Ст.м. "Площадь Победы" в 15 минутах ходьбы, рядом остановки общественного транспорта.
Звоните прямо сейчас и приходите на просмотр. Покажем в удобное для вас время!
Параметры объекта
- Тип объекта
Офис
- Площадь общая
240 м²
- Этаж / этажность
2 / 7
- Раздельных помещений
1
- Материал стен
Блочный
- Высота потолков
3 м
- Ремонт
Хороший
- Отопление
Есть
- Электроснабжение
Есть
- Естественное освещение
Есть
- Вода
Горячая
- Санузел
Есть
- Количество телефонов
1 телефон
- Парковка
Есть
- Принадлежность объекта
Частная
- НДС
НДС включен
- Юридический адрес
Да
- Номер договора
126/1а от 16.09.2025
Оснащение
Кондиционер
Сигнализация
Охрана
Интернет
Андрей Макарей
Агент по недвижимости
Примечание
Местоположение
- Область
- Населенный пункт
- Улица
- Номер дома
1/Б
- Район города
- Микрорайон
- Координаты
53.9045, 27.5888
