Офисные помещения в БЦ «Софит»!
15 597 р.
19 р.≈ 7 $ за м²
Тип
Площадь
Этаж
Описание
Предлагаем в долгосрочную аренду офисные помещения кабинетного типа в БЦ «Софит», Московский р-н!
Помещения можно использовать под оказание медицинских услуг.
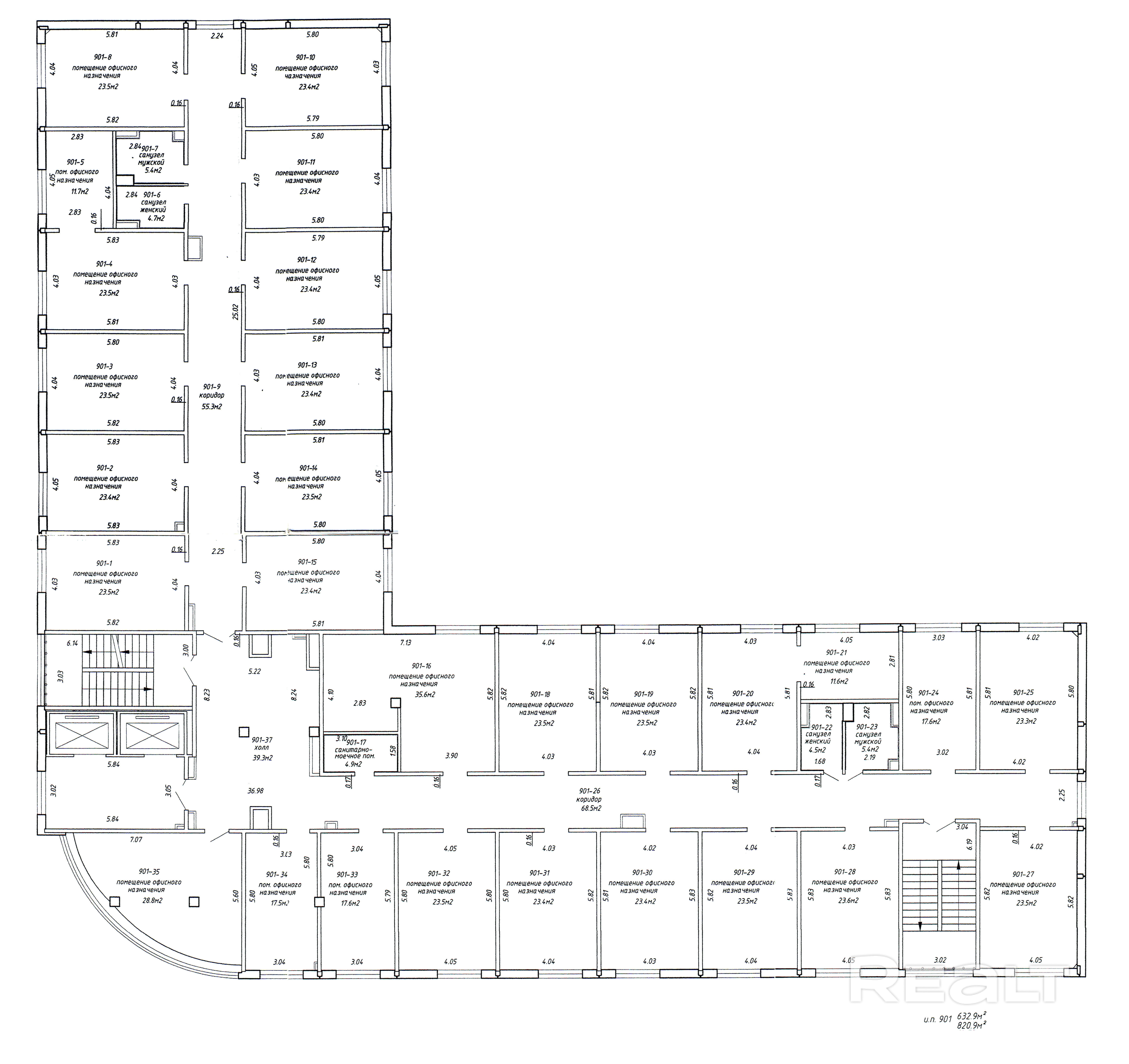
Сдается этаж целиком.
Есть помещение для кухни, 2 женских и 2 мужских санузла, фойе.
В здании 2 лифта, круглосуточная охрана, видеонаблюдение, есть парковка, велопарковка.
Вентиляция с естественным побуждением.
Отопление: посредством собственной газовой котельной.
Учет электроэнергии: индивидуальный.
Телефон и интернет в офисе: оптоволоконные линии.
На первом этаже здания находятся объекты, предназначенные для удовлетворения повседневных потребностей человека: кафе, магазин и др.
Арендатор НЕ оплачивает услуги агентства!
Звоните, договаривайтесь о просмотре, забирайте!
Параметры объекта
- Тип объекта
Офис
- Площадь общая
820.90 м²
- Этаж / этажность
9 / 9
- Год постройки
2018
- Раздельных помещений
26
- Высота потолков
2.7 м
- Ремонт
Нормальный
- Отопление
Есть
- Электроснабжение
Есть
- Естественное освещение
Есть
- Вода
Есть
- Санузел
2 санузла
- Парковка
Есть
- Принадлежность объекта
Частная
- НДС
НДС нет (0%)
- Расположение
В бизнес центре
- Юридический адрес
Да
- Номер договора
81/1а от 12.03.2026
Оснащение
Видеонаблюдение
Охрана
Примечание
Местоположение
- Область
- Населенный пункт
- Улица
- Номер дома
60
- Район города
- Микрорайон
- Координаты
53.8673, 27.509
