Снять помещение, г. Минск, ул. Нововиленская, 49
от 41 р./м²
Аренда
Следить за ценой
Помещение
Тип
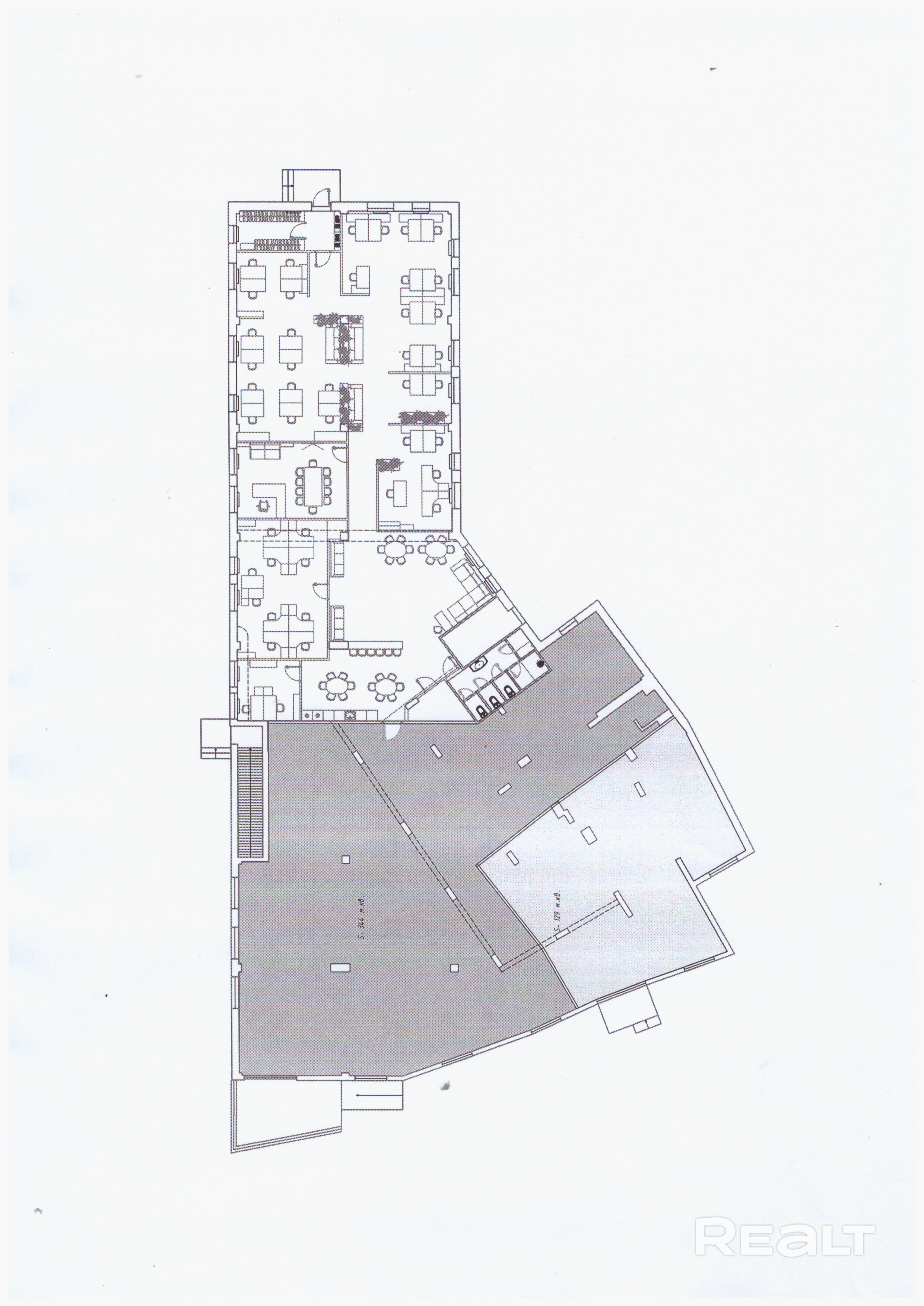
471 - 827.10 м²
Площадь
1 из 1
Этаж
13.05.2026ID 4082768
Параметры объекта
- Тип объекта
Помещение
- Площадь общая
471 - 827.10 м²
- Этаж / этажность
1 / 1
- Раздельных помещений
1
- Материал стен
Блочный
- Высота потолков
3 м
- Ремонт
Строительная отделка
- Отопление
Есть
- Электроснабжение
Есть
- Электрическая мощность
30 кВт
- Естественное освещение
Есть
- Вода
Есть
- Санузел
Есть
- Парковка
Есть
- Принадлежность объекта
Частная
- НДС
НДС включен
- Расположение
В жилом доме
- Юридический адрес
Да
- Новостройка
Да
Оснащение
Оживленное место
Видеонаблюдение
Отдельный вход
Арендодатель
ООО "Группа13"
Контактное лицо
Примечание
Изолированное административно-торговое помещение в Центральном р-не г. Минска, в ЖК "Левада". Часть помещения (341м2) со свежим ремонтом - оборудована под офис, где находится действующий арендатор. Остальная часть (471м2) с черновой отделкой без перегородок. Рассматривается аренда: СВОБОДНОЕ ПОМЕЩЕНИЕ 471м2; СВОБОДНОЕ ПОМЕЩЕНИЕ 471м2+ ЧАСТЬ ОФИСА с сохранением действующего арендатора; Преимущества: Хорошие подъездные пути. Парковка около здания. 4 отдельных входа. Доступ 24/7.
Местоположение
- Область
- Населенный пункт
- Улица
- Номер дома
49
- Район города
- Микрорайон
- Координаты
53.9363, 27.5323
