Аренда многофункционального здание 1804 кв. м
2 400 р.
Тип
Площадь
Этаж
Описание
Предлагаем Вашему вниманию многофункциональное капитальное строение с земельным участком, расположенные по адресу: Минская обл., Узденский р-н, Хотлянский с/с, п. Новый Путь, ул. Центральная, 40
Инженерные коммуникации на земельном участке:
- электроснабжение - 380В, выделенная мощность – 80-90 кВт (есть возможность увеличения, ТП рядом с объектом);
- пробурена скважина;
- канализация местная (накопительная емкость);
- собственная котельная на два твердотопливных котла.
Общие характеристики земельного участка:
- асфальтированное покрытие по периметру объекта;
- на территорию заезжает фура, есть рампа для разгрузки;
- имеется территория для стоянки транспорта;
- открытая площадка с возможностью возведения дополнительных складов.
Капитальное строение:
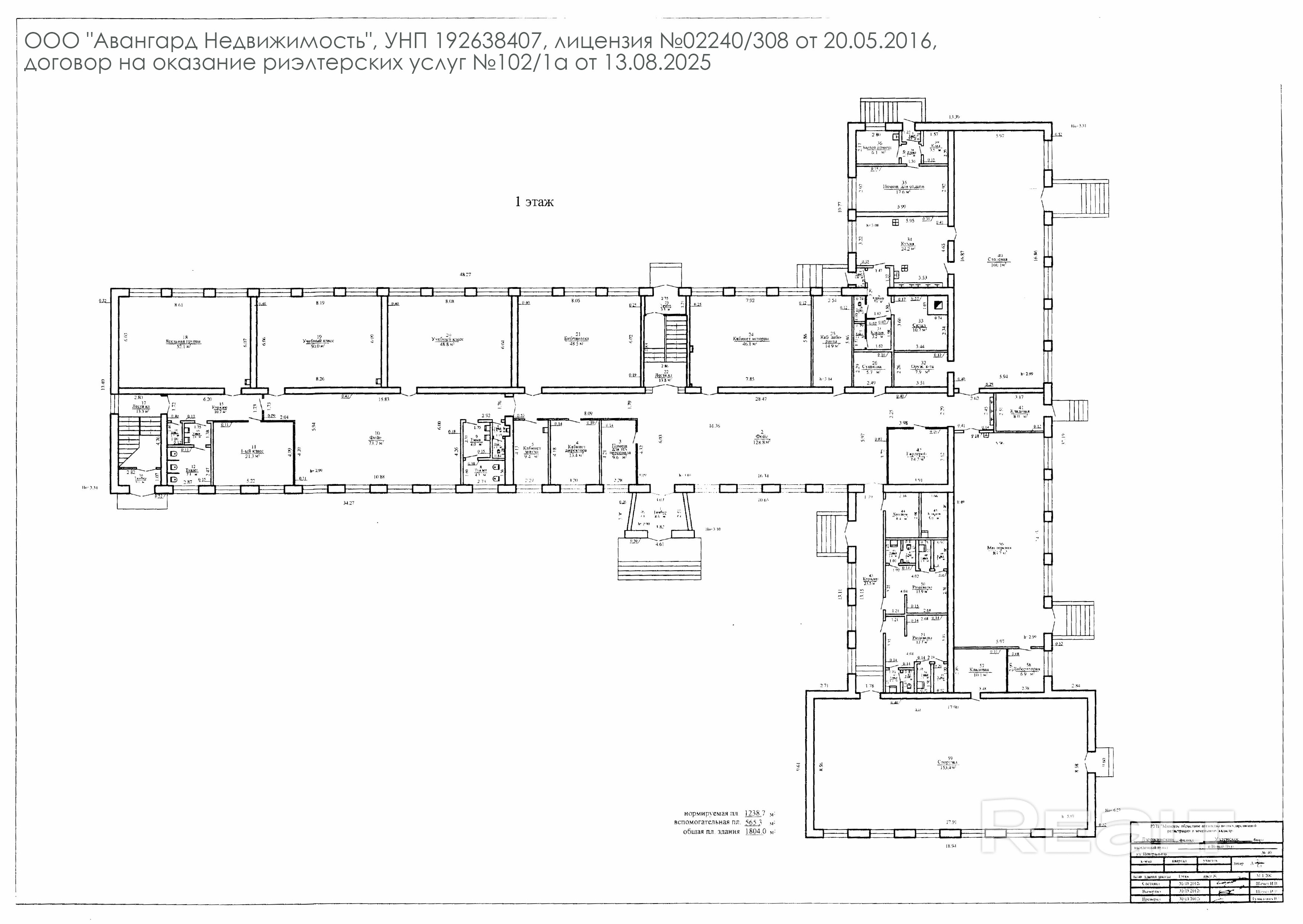
Площадь объекта – 1804,0 кв. м.
Назначение – Здание специализированное для образования и (или)воспитания, наименование – здание школы.
Основные характеристики здания:
- 1-й этаж состоит из: цехов по обработке древесины, складских помещений, вспомогательных помещений (есть роллетные ворота с выходом на рампу), санузла;
- 2-й этаж состоит из: швейных цехов, административного блока, вспомогательных помещений, оборудованной комнаты приема пищи, санузлов;
- высота потолков 3.00-3.05 м;
- выполнен хороший ремонт;
- окна пвх;
- бетонные полы;
- на каждом этаже имеются функционирующие санузлы;
- регулируемое отопление;
- вентиляция естественная;
- 380В выведено на два этажа;
- часть помещений первого этажа здания оборудована системой подачи сжатого воздуха.
Земельный участок:
Площадь земельного участка – 2,5924 га (можно задействовать как открытую площадку)
Локация:
Объект располагается в 58 км от г. Минска, в 35 км от Марьиной Горки. Удобный выезд на трассу Р-23 (Минск-Микашевичи).
Собственник неплательщик НДС!
Звоните прямо сейчас!
Параметры объекта
- Тип объекта
Производство
- Площадь общая
1804 м²
- Этаж / этажность
2 / 2
- Раздельных помещений
10
- Материал стен
Кирпичный
- Высота потолков
3 м
- Ремонт
Хороший
- Отопление
Есть
- Электроснабжение
Есть
- Естественное освещение
Есть
- Вода
Есть
- Санузел
Есть
- Принадлежность объекта
Частная
- НДС
НДС нет (0%)
- Номер договора
102/1а от 12.08.2025
Оснащение
Отдельный вход
Примечание
Местоположение
- Область
- Район
- Населенный пункт
- Улица
- Номер дома
40
- Сельсовет
Хотлянский с/с
- Направление
Слуцкое, 60 км от МКАД
- Координаты
51.8657, 30.2416
