Торговое помещение (кофейня с большим потенциалом) в г.Минске на пр. Дзержинского, 21
3 060 р.
Тип
Площадь
Этаж
Описание
Продается торговое помещение в г.Минске на проспекте Дзержинского, 21.
Идеальное место для развития своего бизнеса в любом направлении.
Стильный и современный ремонт, создающий комфортную обстановку для посетителей. Торговое и техническое оборудование может быть продано одновременно с помещением.
Помещение полностью готово к эксплуатации. Все в отличном состоянии.
Дзержинского 21, - это удобная транспортная развязка и соседство с жилыми массивами и деловыми центрами. Недалеко станция метро «Грушевская».
Помещение располагается на первом этаже, имеет отдельный вход.
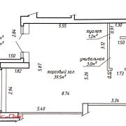
Общая площадь – 43,7 кв.м., в то числе: торговый зал – 39,5 кв.м., умывальная – 3,0 кв.м., туалет – 1,2 кв.м. На полу плитка, на стенах – декоративная штукатурка.
Имеется индивидуальная вытяжка (5 кВт), электросеть 3 фазы по 7-8 кВт.
Готовы сдать помещение в аренду.
Параметры объекта
- Тип объекта
Кафе
- Площадь общая
43.70 м²
- Этаж / этажность
1 / 15
- Материал стен
Монолитный
- Ремонт
Хороший
- Отопление
Есть
- Электроснабжение
Есть
- Естественное освещение
Есть
- Вода
Горячая
- Газ
Есть
- Санузел
Есть
- Оборудование
Есть
- Количество телефонов
1 телефон
- Парковка
Есть
- Принадлежность объекта
Частная
- Расположение
В жилом доме
- Новостройка
Да
- Номер договора
154/2 от 10.11.2025
Оснащение
Видеонаблюдение
Оживленное место
Интернет
Отдельный вход
Мебель
Час-Пик
Контактное лицо
Примечание
Местоположение
- Область
- Населенный пункт
- Улица
- Номер дома
21
- Район города
- Микрорайон
- Координаты
53.8838, 27.5093
