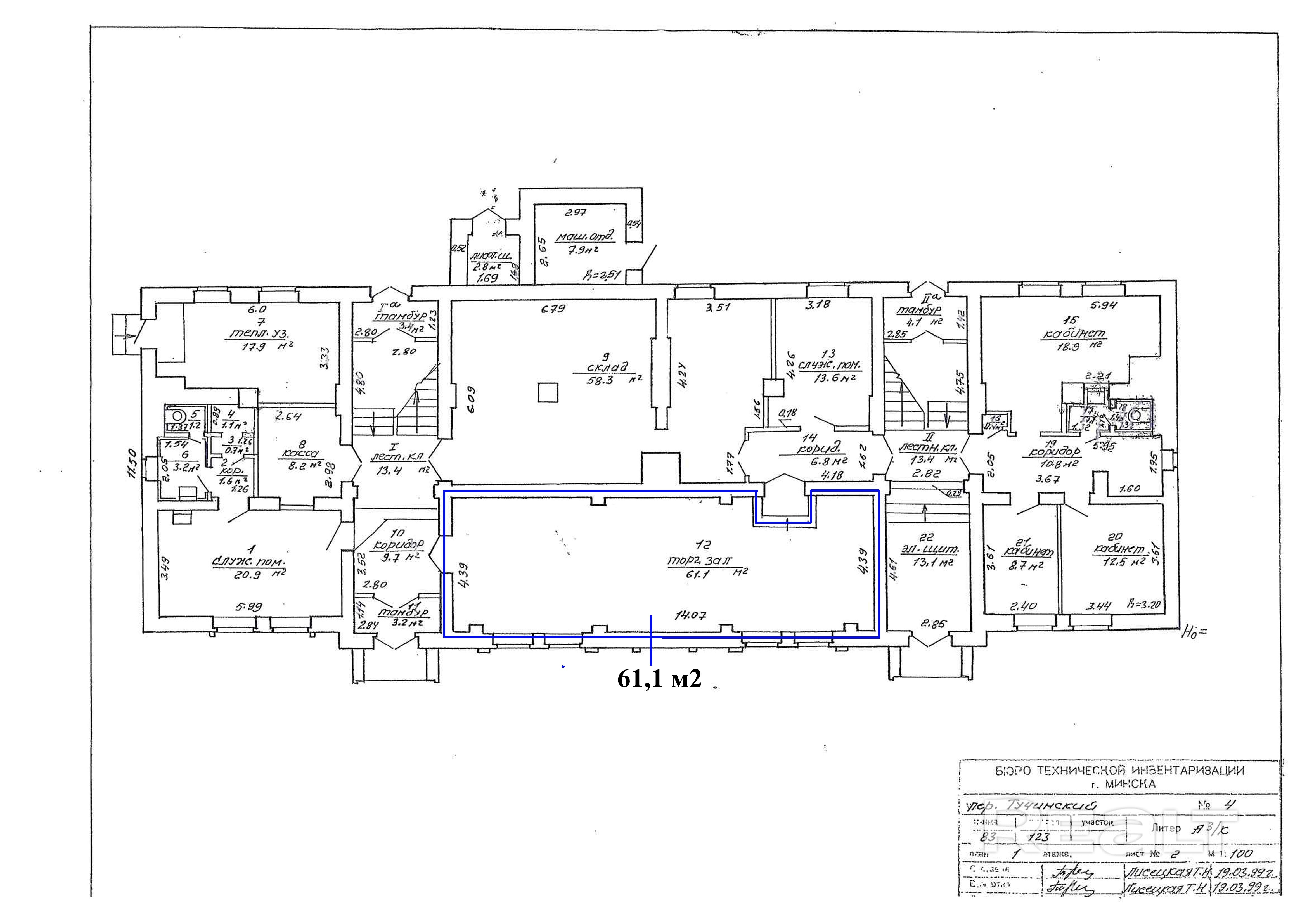
Аренда помещения 61,1 м2 напротив Короны в Минске (метро Молодежная)
54 р./м²
Аренда
Следить за ценой
- г. Минскпер. Тучинский, 4
- Молодежная
- 2 минуты
- На карте
Торговое помещение
Тип
61.10 м²
Площадь
1 из 3
Этаж
вчера, 08:14ID 3918544
Описание
Аренда помещения под офис/услуги/торговое/склад/производство/общепит - 61,1 кв.м. во Фрунзенском районе Минска. Фото и информация о здании по адресу пер. Тучинский, 4, Минск.
Круглосуточный доступ
Парковка Короны
Вход отдельный с улицы
Есть возможность размещения рекламных вывесок на здании за доп. плату
Коммуникации:
отопление
электричество и свет
подвод воды
сан. узлы на этаже
Что рядом?
ТЦ Корона
метро Молодежная
жд станция Минск-Северный
кафе ПитСтоп, кафе Ежедневник, боулинг и пр.
ул. Клары Цеткин
ул. Тимирязева
ул. Кальварийская
проспект Машерова / 1 кольцо
пер. Домашевский
Параметры объекта
- Тип объекта
Торговое помещение
- Площадь общая
61.10 м²
- Этаж / этажность
1 / 3
- Ремонт
Хороший
- Отопление
Есть
- Электроснабжение
Есть
- Естественное освещение
Есть
- Вода
Есть
- Санузел
Есть
- Парковка
Есть
- Принадлежность объекта
Частная
- НДС
НДС включен
- Расположение
В торговом центре
- Юридический адрес
Да
Арендодатель
(собственник)
Контактное лицо
Примечание
Аренда помещения 61,1 м.кв. под офис, магазин, салон, общепит. 1 этаж. Коммуникации: подвод воды, сан. узлы в здании, отопление, электричество и свет Что рядом? ТЦ Корона метро Молодежная жд станция Минск-Северный кафе ПитСтоп, кафе Ежедневник, боулинг и пр. ул. Клары Цеткин ул. Тимирязева ул. Кальварийская проспект Машерова / 1 кольцо
Местоположение
Молодежная2 минуты
- Область
- Населенный пункт
- Улица
- Номер дома
4
- Район города
- Координаты
53.9071, 27.5291
