Снять торговое помещение, г. Минск, просп. Победителей, 129
48 - 49 р./м²
Тип
Площадь
Этаж
Описание
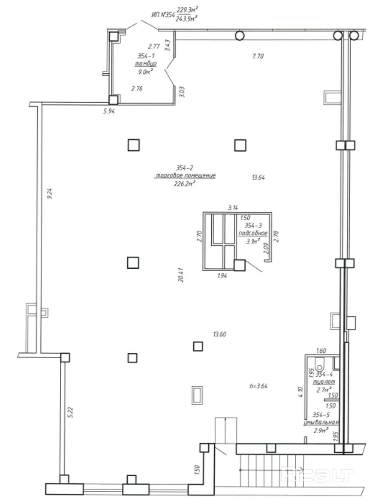
Помещение общей площадью 243,9 кв.м с отделкой располагается на втором этаже (вход со стилобата) многоэтажного жилого дома на проспекте Победителей, 129.
Арендная ставка 48,96 руб/кв.м с НДС.
Помещение имеет отдельный вход. Хороший ремонт, стены окрашены, на полу плитка керамогранит, санузел обустроен.
Проведена телефонная линия, оптоволокно, пожарная сигнализация.
Арендная ставка 47,76 руб./кв.м с НДС.
Отличное местоположение в современном развитом районе
Рядом остановки общественного транспорта, пр-т Победителей, автомобильная развязка МКАД.
Хороший пешеходный трафик.
Многочисленные парковочные места возле дома.
В доме расположились многочисленные организации, предоставляющие свои товары и услуги в сфере строительства и декора: напольные покрытия, обои, электрика, сантехника, дизайнерские студии и пр.
Поможем подобрать помещение в аренду без дополнительных оплат.
Параметры объекта
- Тип объекта
Торговое помещение
- Площадь общая
243 - 244 м²
- Этаж / этажность
2 / 17
- Материал стен
Монолитный
- Ремонт
Хороший
- Отопление
Есть
- Электроснабжение
Есть
- Естественное освещение
Есть
- Вода
Есть
- Санузел
Есть
- Парковка
Есть
- Принадлежность объекта
Частная
- НДС
НДС включен
- Расположение
В жилом доме
- Номер договора
24/3а от 03.07.2023
Оснащение
Оживленное место
Примечание
Местоположение
- Область
- Населенный пункт
- Улица
- Номер дома
129
- Район города
- Микрорайон
- Координаты
53.9413, 27.4657
