Аренда Производственно-складского комплекса в 11 км от Минска. д. Юхновка, ул. Луговая, 8
4 975 - 16 030 р.
11 - 14 р.≈ 4 - 5 $ за м²
Тип
Площадь
Этаж
Описание
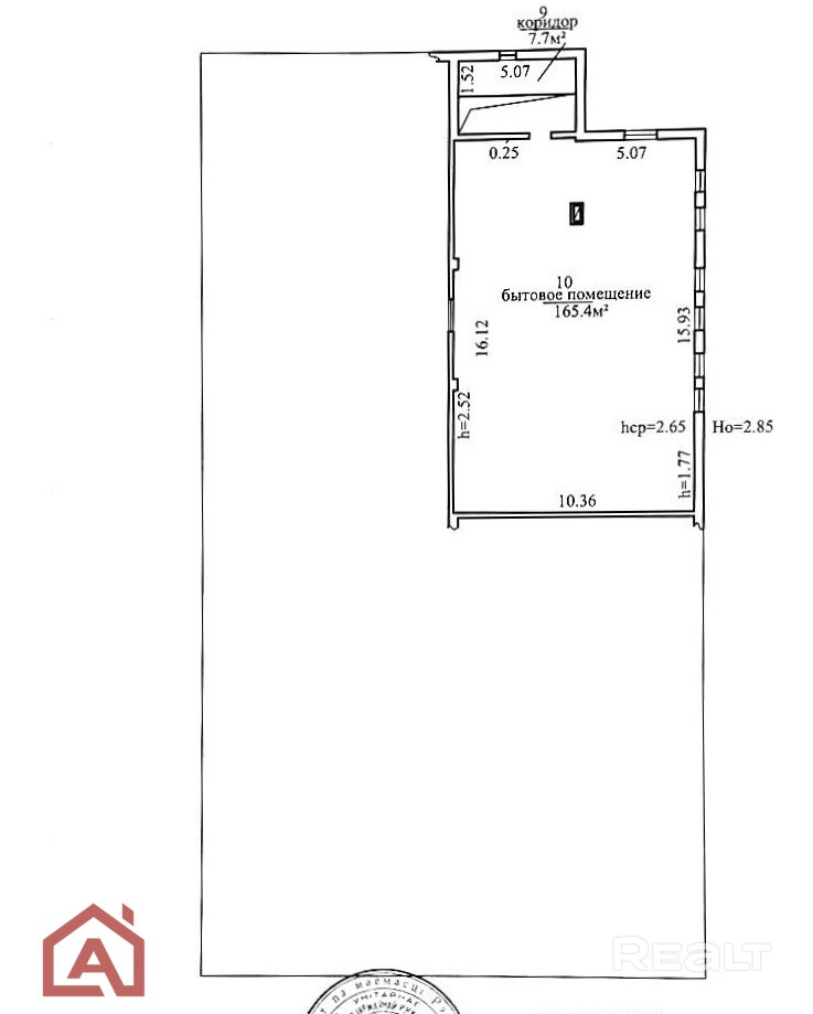
Производственно-складской комплекс 1261 м2 на участке 68 соток в 11 км от Минска.
Описание:
Сдается готовый объект для вашего бизнеса — производственная база с отличной логистикой и автономными коммуникациями.
Основные характеристики:
• Два отдельно стоящих здания: 932.7 м2 и 328.9 м2.
• Офисный блок: 165 м2
• Земельный участок: 68 соток (территория полностью огорожена).
Инженерные решения и логистика:
• Отопление: Собственная газовая котельная.
• Водоснабжение: Промышленная скважина со всеми разрешительными документами.
• Высота потолков: До 5 метров
• Транспорт: Расстояние до МКАД — всего 11 км.
Преимущества:
Возможна продажа. Объект обладает высоким потенциалом для расширения: на территории есть место для строительства еще одного корпуса.
https://realt.by/sale-proizvodstvo/object/4044565/
Консультация эксперта по выбору недвижимости для жизни или инвестирования.
Забронируем нужный вариант на время продажи и продадим вашу недвижимость по лучшей рыночной стоимости.
Получите экспертную оценку своей недвижимости, просто позвонив нам.
Не дозвонились? Напишите нам в Viber, WhatsApp, Telegram.
Абсолют Недвижимость УНП 193547698.
Лицензия 02240/416 выд. Минюст. РБ, 16.06.2021г.
Параметры объекта
- Тип объекта
Склад
- Площадь участка
68 соток
- Площадь общая
329 - 1261 м²
- Этаж / этажность
1 / 1
- Год постройки
2001
- Раздельных помещений
10 - 15
- Материал стен
Кирпичный
- Высота потолков
4 м
- Ремонт
Хороший
- Отопление
Есть
- Электроснабжение
380В
- Естественное освещение
Есть
- Вода
Есть
- Газ
Есть
- Санузел
2 санузла
- Количество телефонов
1 телефон
- Парковка
Есть
- Принадлежность объекта
Частная
- Юридический адрес
Да
- Номер договора
64/1а от 09.04.2026
Оснащение
Видеонаблюдение
Рампа
Отдельный вход
Интернет
ООО "Абсолют Недвижимость"
Агентство недвижимости
УНП: 193547698 Лицензия: 02240/416 МЮ РБ, 15.06.2021
Светлана Даниленко
Риэлтер
Примечание
Местоположение
- Область
- Район
- Населенный пункт
- Улица
- Номер дома
8
- Сельсовет
Колодищанский с/с
- Направление
Московское, 11 км от МКАД
- Координаты
53.9715, 27.8588
