Продается Бизнес- центр IT max корпус B в самом центре, ст. м. Якуба Коласа
18 003 050 р.
- г. Минскул. Кульман, 1/1
- Площадь Якуба Коласа
- На карте
Тип
Площадь
Описание
Продажа корпуса В в МФК «Атмосфера», 2468 м2
Предлагается к приобретению 4-этажное здание в структуре одного из самых узнаваемых деловых кластеров Минска — «Атмосфера» (ул. Кульман, формат объекта предполагает мультифункциональное использование: от головного офиса компании до ресторана или сервисного центра.
Локация:
Ключевое преимущество — интеграция в территорию с уже сформированным высоким трафиком. Проект «Атмосфера» объединяет крупнейший гастромолл города, торговые галереи и детский центр, что обеспечивает постоянный поток платёжеспособной аудитории. Станция метро Якуба Коласа в пешей доступности.
Характеристики:
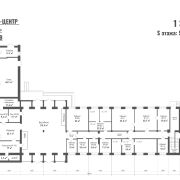
• Площадь: 2468 м2
• Этажность: 4 уровня
• Состояние: кабинетная нарезка (внутренние перегородки готовы к зонированию)
• Первый этаж: помещения с отдельным входом под стрит-ритейл и предприятия питания
Коммерческие условия:
• Парковка на прилегающей территории
• Отсутствие ограничений по перепрофилированию: допустимы офисы, услуги, общепит
Для кого:
Такое здание подойдёт и крупным инвесторам, и компаниям, которые хотят купить просторный офис для себя. Высокий спрос в этом месте гарантирует надёжность вложений.
Параметры объекта
- Тип объекта
Готовый бизнес
- Площадь общая
2468 м²
- Этажность
4
- Материал стен
Монолитный
- Высота потолков
2.7 м
- Ремонт
Хороший
- Отопление
Есть
- Электроснабжение
Есть
- Вода
Есть
- Принадлежность объекта
Частная
- НДС
НДС включен
- Юридический адрес
Да
- Новостройка
Да
Оснащение
Оживленное место
Продавец
Иван
Контактное лицо
Примечание
Местоположение
- Область
- Населенный пункт
- Улица
- Номер дома
1/1
- Район города
- Координаты
53.9187, 27.5849
