Продажа коттеджа д.Дубовляны
554 060 р.
Тип
Участок
Общая
Жилая
Описание
Продается жилой 2-х этажный дом в д.Дубовляны, 5 км от Минска, граничащий с а.г.Большевик
Земельный участок 16 соток (в пожизненно наследуемом владении), благоустроен, + 6 соток земли для ведения сельского хозяйства.
Дом из газосиликатных блоков, утеплен снаружи (толщина утеплителя 100 мм) и оштукатурен. Крыша – металлочерепица.
К дому примыкает гараж на два автомобиля со смотровой ямой и погребом.
На участке имеется навес, 2 парника и огромная хозпостройка из газосиликатных блоков площадью 113 м2, которую можно использовать как склад, мастерскую. Электричество 220/380 Вт, подведена центральная вода. Непосредственно к воротам хозблока отличный подъезд.
В доме установлены двухкамерные энергосберегающие стеклопакеты.
Видеонаблюдение.
Котельная оборудована двухконтурным отопительным котлом Vaillant (производства Германия).
Радиаторы с терморегуляторами температуры (производства Германия) разведены как по первому, так и по второму этажу, подводка к радиаторам скрытая.
Электропроводка разведена по дому медным кабелем. В доме установлен кондиционер.
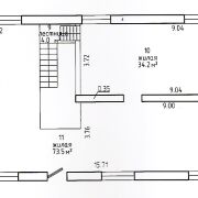
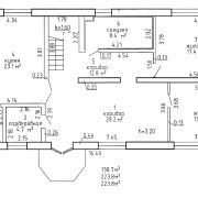
Площадь дома 223,8 м2
При входе в дом имеется хорошо спланированная гардеробная. Также в доме на первом этаже: огромная гостиная, 2 отдельные комнаты, кухня, котельная, совмещенный просторный санузел.
Ремонт второго этажа практически завершен.
В 2019 году дом введен в эксплуатацию, удобное месторасположение рядом с Минском по Мядельскому направлению.
Рядом сосновый лес, в 10 минутах езды – водохранилище Вяча.
Всегда свежий воздух, дружные соседи.
В шаговой доступности магазин, школа, детский сад, банк, почта, аптеки, амбулатория.
Хорошо развита инфраструктура с непрерывным транспортным сообщением.
Дом полностью оборудован и готов для комфортного постоянного проживания!!!
Лицензия №02240/483 выдана 18 мая 2024 г.
Параметры объекта
- Тип объекта
Дом
- Площадь участка
19 соток
- Площадь общая
223.8 м²
- Площадь жилая
138.7 м²
- Площадь кухни
23.1 м²
- Уровней в доме
2
- Год постройки
2019
- Процент готовности
100
- Материал стен
Силикатные блоки
- Материал крыши
Черепица
- Отопление
На газу
- Газ
Есть
- Канализация
Местная
- Электроснабжение
Есть
- Вода
Центральный водопровод
- Статус земли
Пожизненно наследуемое владение
- Условия продажи
Чистая продажа
- Номер договора
131/1 от 02.12.2024
Примечание
Местоположение
- Область
- Район
- Населенный пункт
- Улица
- Сельсовет
Папернянский с/с
- Направление
Мядельское, 3.7 км от МКАД
- Координаты
54.000469712, 27.54316979
