Купить дом, д. Поповцы, ул. Трудовая (Слуцкий р-н, Минская область)
47 085 р.
Тип
Участок
Общая
Жилая
Описание
Продается дом в прекрасном живописном месте д. Поповцы Слуцкого района.
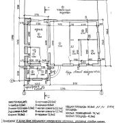
Общая площадь дома 92,5 м.кв. В доме три просторных комнаты общей площадью 45,8 м.кв., кухня площадью 16,8 м.кв. С обратной стороны дома выход на открытую террасу общей площадью 42.3 м.кв.
К дому подведен газ, осталось только сделать разводку по дому. В доме имеется совмещенный санузел, выведена вся разводка под сантехнику. В доме все окна ПВХ, входная дверь металлическая, дверь на террасе пвх. По всему дому залита стяжка. Внутри дома остался стройматериал для внутренней отделки. На чердаке мусора нет, стропила крепкие.
Фундамент крепкий высокий. Дом поднимался на новый фундамент.
Основной дом выполнен из бруса, обшит сайдингом. Нижние венцы крепкие, менять не нужно. Пристройка к дому, где расположены кухня, санузел выполнена из блоков. Фундамент сплошной на весь дом.
Ограждение от улицы - металический каркас, в гараже подготовлен для установки металоштакетник.
На участке площадью 0,25 га расположены: гараж, на втором этаже летняя комната. Также имеется очень хороший погреб. Из насаждений: яблони.
Подъездные пути асфальт и 500 м гравийка. В деревне находится продуктовый магазин, также ездит автолавка. В соседней деревне Мелешки находится школа, детский сад, фап, дом культуры, почта, отделение банка. Школьный автобус возит детей.
Из Слуцка в д. Поповцы ходит пригородный автобус. На расстоянии 1 км находится лес, в 4 км расположено озеро.
Расстояние от г. Слуцка до д. Поповцы 15 км, от МКАД - 120 км.
При осмотре уместен торг.
ООО «Партнер для всех», УНП 690665135, лицензия Министерства юстиции Республики Беларусь № 02240/321 от 02.12.2016, договор на оказание риэлтерских услуг № 107/5 от 25.09.2025г
Параметры объекта
- Тип объекта
Дом
- Площадь участка
25 соток
- Площадь общая
92.5 м²
- Площадь жилая
45.8 м²
- Площадь кухни
16.8 м²
- Уровней в доме
1
- Год постройки
1960
- Процент готовности
100
- Материал стен
Бревенчатый
- Материал крыши
Шифер
- Отопление
На газу
- Газ
Есть
- Канализация
С/у на улице
- Электроснабжение
Есть
- Вода
Колодец
- Гараж
Есть
- Статус земли
Пожизненно наследуемое владение
- Условия продажи
Чистая продажа
- Номер договора
107/5 от 24.09.2025
Инфраструктура
Хозпостройки
Водоем
Рядом лес
Примечание
Местоположение
- Область
- Район
- Населенный пункт
- Улица
- Сельсовет
Весейский с/с
- Направление
Слуцкое, 120 км от МКАД
- Координаты
53.017629, 27.730939
