Эксклюзивный коттедж премиум-класса из кирпича в д.Дроздово!
2 399 550 р.
Тип
Участок
Общая
Жилая
Описание
Продаётся эксклюзивный новый стильный энергоэффективный коттедж премиум-класса из кирпича в престижном коттеджном посёлке "д.Дроздово", пер.Весенний, Логойское направление, Минский район, 1 км от границ г.Минска; (5 минут до Логойского тракта); асфальт до участка; сосны на участке, приглашаем на просмотр, торг!
Высококачественные материалы строительства и отделки:
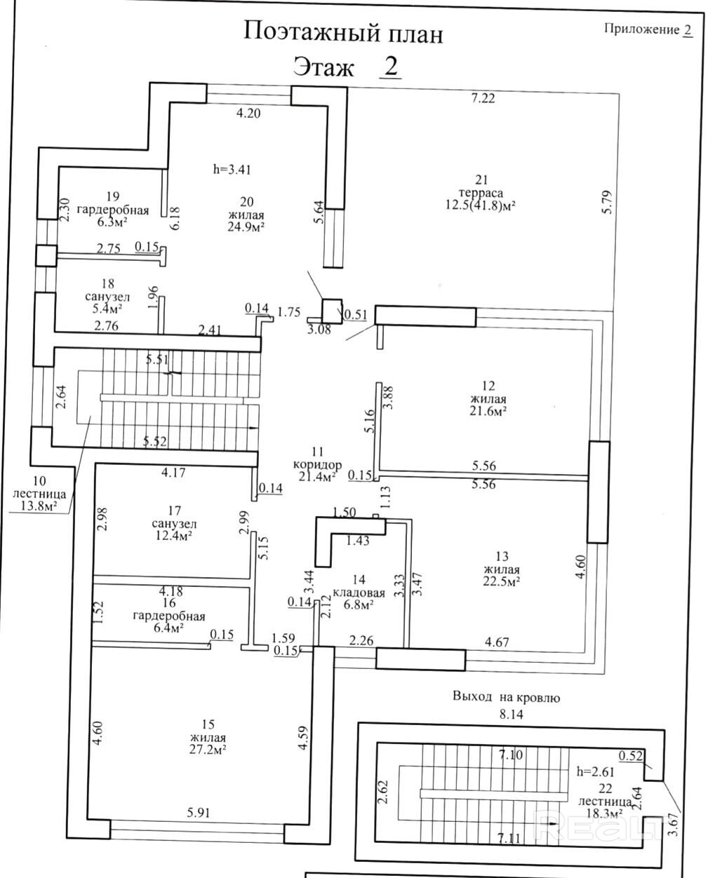
-Энергоэффективный кирпичный дом - построенный в 2025 году по индивидуальному архитектурному дизайн-проекту; два уровня с выходом на эксплуатируемую кровлю;
-Современная топочная с погодозависимой автоматикой, газовый котёл с бойлером, радиаторы, тёплые полы; насосные группы;
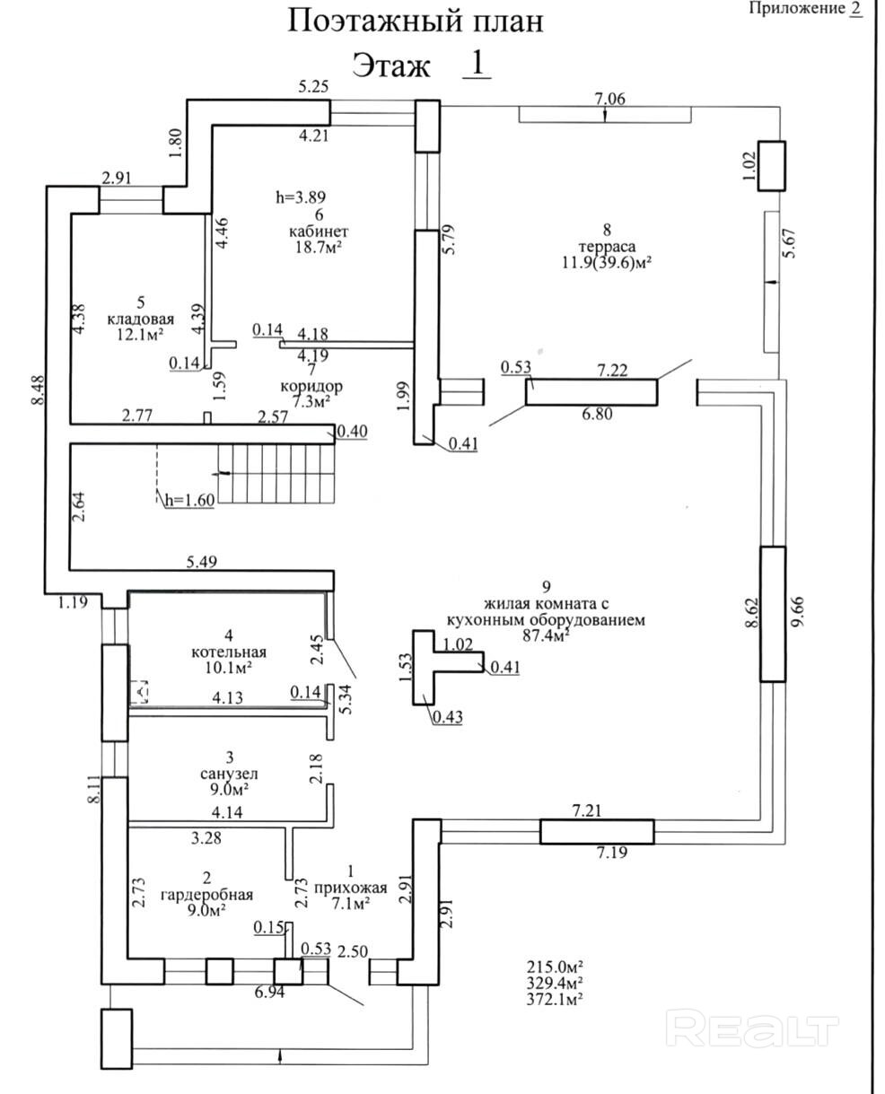
-Продуманная архитектурная планировка, 6-ти комнатный, высота потолков 3,9 метра; все строительные работы выполнялись по проектным чертежам, в строгом соответствии с технологическими процессами и знаниями новейших тенденций современного загородного строительства;
-Стены 40 см кирпичные с утеплением каменной ватой ватой 15 см, декоративной штукатуркой, клинкером;
-Эксплуатируемая кровля (железобетонная монолитная плита 20 см, утепление 25 см, эксплуатируемое гидроизоляционное кровельное покрытие), ливневая система с дренажной канализацией;
-Качественные алюминиевые панорамные энергосберегающие стеклопакеты с ламинацией; подсветка фасада;
-Жилая современная коттеджная застройка, респектабельные соседи;
-Все коммуникации: свет 380, газ, водопровод - скважина, автономная канализация, оптоволокно-интернет;
- Земельный участок 16,3 соток, частная собственность(приватизирован);
Развитая инфраструктура на доступном расстоянии: остановка маршрутного такси, магазины, школа и детский сад, лесной массив, удобный подъезд, одно из лучших мест в пригороде Минска для жизни, не упустите свой шанс приобрести великолепный загородный особняк, для успешных людей, чистая продажа.
Поможем профессионально быстро и выгодно продать Вашу недвижимость в связи с покупкой вышеуказанного объекта недвижимости, размещение рекламных объявлений на лучших специализированных интернет площадках Республики Беларуси, России, стран ближнего и дальнего зарубежья-70 стран мира, Профессиональная фото-видео-аэросъемка, рекламные ролики в социальных сетях, а также использование самых современных и уникальных технологий для успешной продажи Вашего объекта недвижимости. Ответим на Ваши вопросы, предоставим всю необходимую информацию. Напишите Нам в удобный для Вас мессенджер: Viber | Telegram | WhatsApp.
Риэлтер Александр Владимирович.
Параметры объекта
- Тип объекта
Коттедж
- Площадь участка
16.3 соток
- Площадь общая
372.1 м²
- Площадь жилая
215 м²
- Площадь кухни
87.4 м²
- Уровней в доме
2
- Год постройки
2025
- Процент готовности
100
- Новостройка
Да
- Материал стен
Кирпичный
- Материал крыши
Гидроизоляция
- Отопление
На газу
- Газ
Есть
- Канализация
Местная
- Электроснабжение
Есть
- Вода
Скважина
- Статус земли
Частная собственность
- Возможен торг
Да
- Условия продажи
Чистая продажа
- Номер договора
141/3 от 15.10.2025
Инфраструктура
Рядом лес
Элитный коттедж
Александр Чукович
Риэлтер
Примечание
Местоположение
- Область
- Район
- Населенный пункт
- Улица
- Номер дома
2
- Сельсовет
Боровлянский с/с
- Направление
Логойское, 1.5 км от МКАД
- Координаты
53.98742828, 27.614017011


