Купить дом, д. Островской Перевоз, ул. Магистральная, 56 (Березинский р-н, Минская область)
72 012 р.
Чистая продажа
Следить за ценой
Дом
Тип
18 сот
Участок
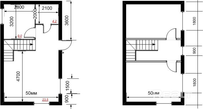
110 м²
Общая
28.10.2025ID 3929450
Параметры объекта
- Тип объекта
Дом
- Площадь участка
18 соток
- Площадь общая
110 м²
- Год постройки
2025
- Новостройка
Да
- Статус земли
Частная собственность
- Возможен торг
Да
- Условия продажи
Чистая продажа
Продавец
Анастасия
Контактное лицо
Примечание
Продается жилой дом без отделки и коммуникаций. Недалеко от участка находится река Березина. Подведены к участку электрические сети с возможностью подключения электроотопления.
Местоположение
- Область
- Район
- Населенный пункт
- Улица
- Номер дома
56
- Сельсовет
Богушевичский с/с
- Направление
Могилёвское, 118 км от МКАД
- Координаты
53.56925298, 28.94374477
