Купить дом, д. Проньки (Мядельский р-н, Минская область)
211 725 р.
Тип
Участок
Общая
Жилая
Описание
Продается дом (дача), для большой дружной семьи или нескольких семей, в 130 километрах от МКАД, Мядельское направление, Минская область, Мядельский район, Занарочский с/с, д. Проньки.
Дом двухэтажный, расположен на земельном участке 25 соток - частная собственность и 25 соток в пользовании под огородничество (частная собственность). На участке также имеется: баня с комнатой отдыха, навес на четыре автомобиля, хозпостройка, беседка, пруд, садовые насаждения и кустарники, декоративные и лесные деревья.
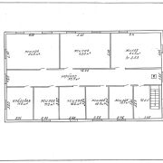
В доме: на первом этаже - огромный холл 62 м кв., две жилых комнаты 18,9 и 18,4 кв. м, кухня, котельная и кладовая. На втором этаже - восемь жилых (спальных) комнат (24,5+23,3+24,6+11,6+11,0+10,8+10,9+10,7 м кв.).
Дом построен из блоков газосиликатных облицован кирпичом, крыша- металлопрофиль, окна - ПВХ.
Рядом, в начале деревни небольшое озеро и на расстоянии 2 км находится самое большое и красивое в Беларуси озеро Нарочь, где можно с удовольствием отдохнуть и порыбачить, а также рядом места грибные и ягодные, чистейший воздух.
Вдоль берега озера расположены оздоровительные санатории и детские лагеря отдыха, детский оздоровительный лагерь "Зубренок" находится в 1,3 км.
Размеры и планировка дома позволяют организовать агроусадьбу или миниотель, что будет востребовано, так как озерный Нарочанский край - это привлекательное место оздоровления и отдыха не только граждан нашей Республики, но и иностранцев.
До местонахождения дома удобное транспортное сообщение, асфальтированная дорога.
Деревня жилая, но тихая и спокойная. Доброжелательные соседи.
Мы готовы представить Вам объект и готовы к диалогу.
Параметры объекта
- Тип объекта
Дом
- Площадь участка
50 соток
- Площадь общая
293.3 м²
- Площадь жилая
153.5 м²
- Площадь кухни
10.2 м²
- Уровней в доме
2
- Год постройки
1996
- Процент готовности
100
- Материал стен
Силикатные блоки
- Ремонт
Отделка деревом
- Мебель
Есть
- Отопление
На газу
- Газ
Есть
- Канализация
Местная
- Электроснабжение
Есть
- Вода
Скважина
- Баня
Есть
- Гараж
Есть
- Статус земли
Пожизненно наследуемое владение
- Возможен торг
Да
- Условия продажи
Чистая продажа
- Номер договора
57/3 от 24.12.2025
Инфраструктура
Беседка
Водоем
Рядом лес
Пруд на участке
Сад
Хозпостройки
Час-Пик
Контактное лицо
Примечание
Местоположение
- Область
- Район
- Населенный пункт
- Сельсовет
Занарочский с/с
- Направление
Мядельское, 130 км от МКАД
- Координаты
54.818802, 26.700041
