Продается выделенная квартира площадью 95,3 кв. м. в частном доме.
340 968 р.
Тип
Участок
Общая
Жилая
Описание
Продается выделенная квартира площадью 95,3 кв. м. в частном доме.
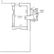
К квартире имеется отдельный вход с улицы. Участок 6,85 соток на две квартиры, по периметру огорожен. В квартире две жилые комнаты, гардеробная, кухня 25 кв. м., совмещенный санузел. Дом кирпичный, крыша шифер, центральное водоснабжение, отопление газовое(отдельный котел), канализация местная, гараж под домом, кирпичный подвал. Состояние квартиры требует ремонта, в жилых комнатах заменены окна на стеклопакеты ПВХ, на полу доска, высота потолка 2,73 м.
Приглашаем на просмотр!!! Торг.
Параметры объекта
- Тип объекта
Полдома
- Площадь участка
6.85 соток
- Площадь общая
95.3 м²
- Площадь жилая
45 м²
- Площадь кухни
24.5 м²
- Год постройки
1962
- Процент готовности
100
- Материал стен
Кирпичный
- Материал крыши
Шифер
- Отопление
На газу
- Газ
Есть
- Канализация
Местная
- Электроснабжение
Есть
- Вода
Центральный водопровод
- Статус земли
Пожизненно наследуемое владение
- Условия продажи
Чистая продажа
- Номер договора
35/2 от 31.03.2026
Агентство недвижимости
Контактное лицо
Примечание
Местоположение
- Область
- Населенный пункт
- Номер дома
48
- Район города
- Микрорайон
- Координаты
53.950697372, 27.600866753
