Купить дачу, с/т Заранак (Воложинский р-н, Минская область)
144 024 р.
Чистая продажа
Следить за ценой
Дача
Тип
10 сот
Участок
90 м²
Общая
62 м²
Жилая
21.05.2025ID 3671139
Параметры объекта
- Тип объекта
Дача
- Площадь участка
10 соток
- Площадь общая
90 м²
- Площадь жилая
62 м²
- Год постройки
2025
- Процент готовности
90
- Статус земли
Частная собственность
- Условия продажи
Чистая продажа
Продавец
максим
Контактное лицо
Примечание
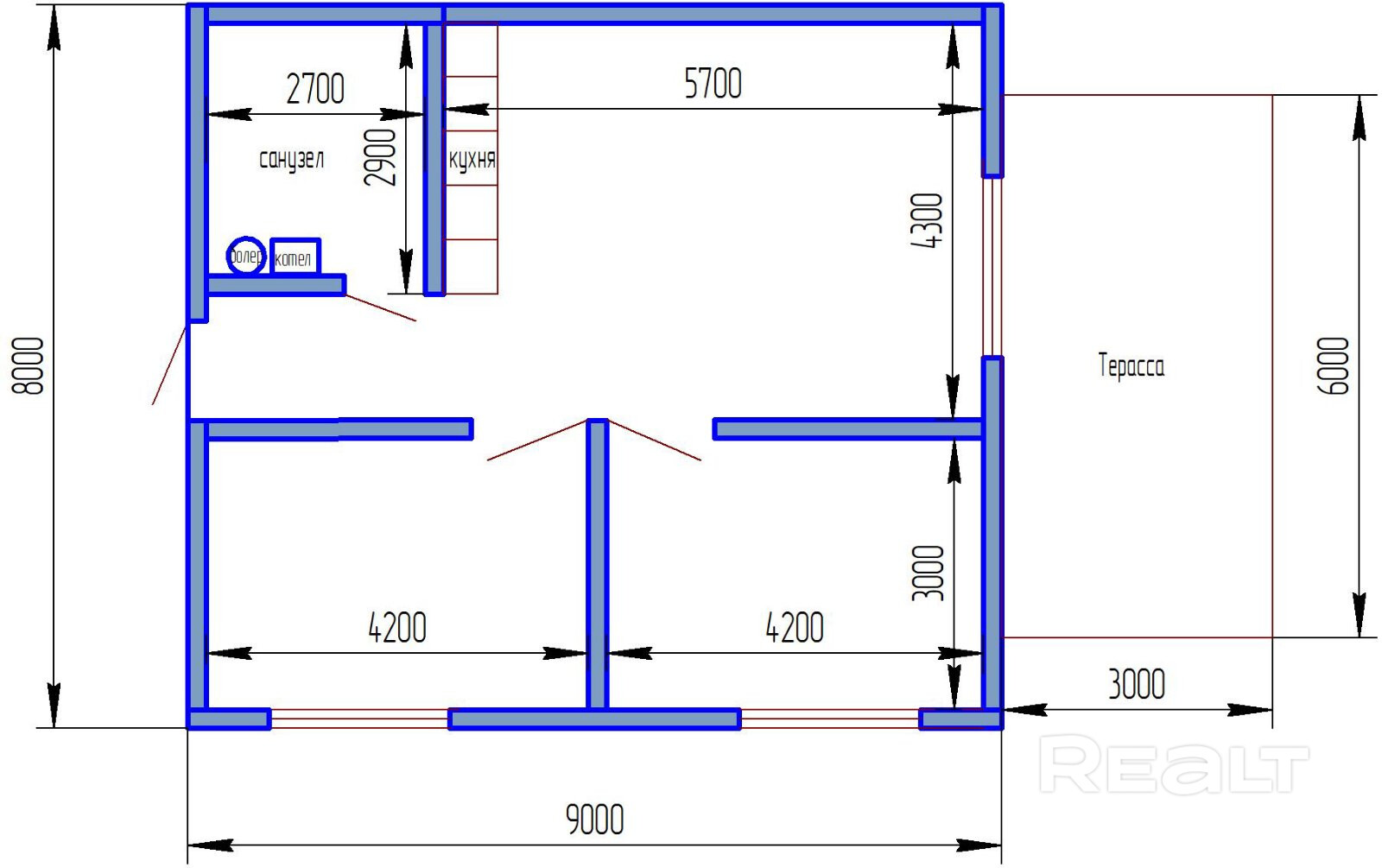
Дом 9х8, 30км от Минска, готов под внутреннюю отделку
Местоположение
- Область
- Район
- Населенный пункт
- Сельсовет
Раковский с/с
- Направление
Молодечненское, 24 км от МКАД
- Координаты
54.032119567, 27.179279307
