Купить 2-комнатную квартиру, г. Минск, ул. Нововиленская, 61
452 846 р.
7 930 р.≈ 2 863 $ за м²
Чистая продажа
Следить за ценой
57.1 м²
Общая
34.4 м²
Жилая
9 из 9
Этаж
17.02.2026ID 3926567
Параметры объекта
- Количество комнат
2
- Раздельных комнат
2
- Площадь общая
57.1 м²
- Площадь жилая
34.4 м²
- Год постройки
2025
- Этаж / этажность
9 / 9
- Тип дома
Каркасно-блочный
- Планировка
Свободная планировка
- Балкон
Лоджия
- Ремонт
Без отделки
- Высота потолков
2.7 м
- Санузел
Раздельный
- Стоянка автомобиля
Есть
- Собственность
Частная
- Условия продажи
Чистая продажа
- Вид из окон
Во двор
Удобства
Интернет
Лифт
Видеонаблюдение
Продавец
Максим
Контактное лицо
Примечание
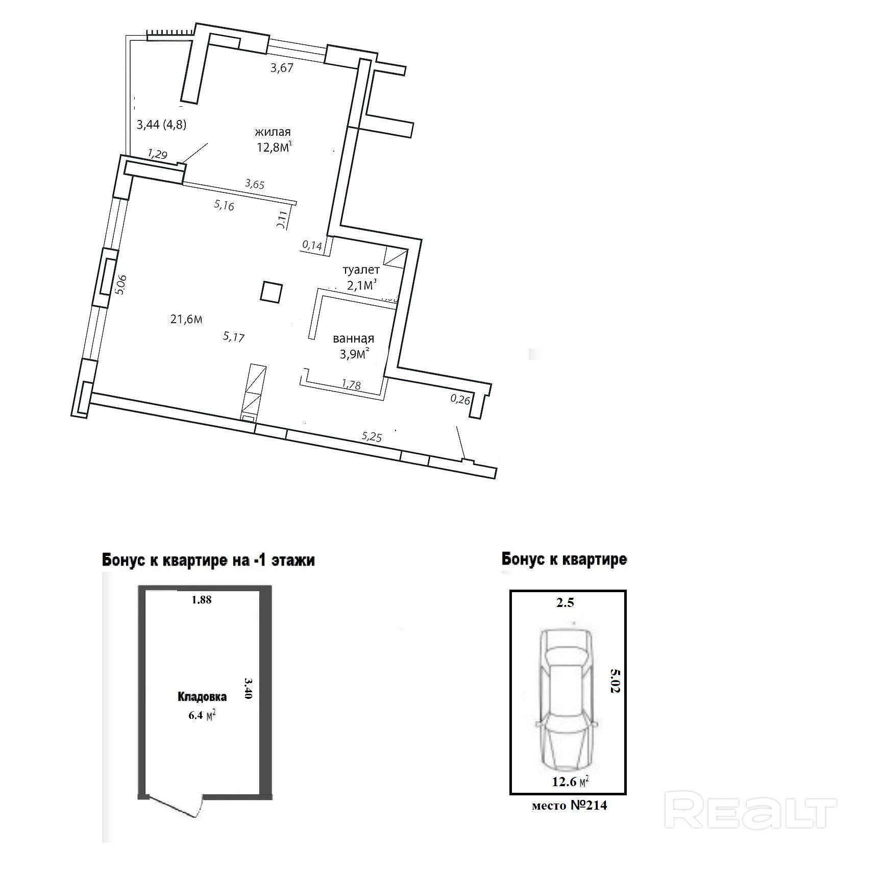
📍 Адрес: г. Минск, ул. Нововиленская, 61, подъезд 11 📍 ЖК «Левада» от застройщика Айрон - современный комплекс для тех, кто ценит комфорт, стиль и природу рядом с центром города. ✨ О квартире: • Евродвушка, площадь 57,1 м² (по СНБ) • Этаж - 9-й (над ним полноценный технический этаж) • Сторона света: северо-восток • Кладовое помещение 6,4 м² (в цоколе, со своим электрощитом) • Машиноместо на открытой парковке под шлагбаумом 🟢 Кладовое помещение и машиноместо входят в стоимость квартиры!
Местоположение
- Область
- Населенный пункт
- Улица
- Номер дома
61
- Район города
- Микрорайон
- Жилой комплекс
БЦ "Левада"
- Координаты
53.9368, 27.5281
