Скачать приложение Realt
Скачать

Продажа трехкомнатной квартиры в квартале Depo.

1 343 305 р.

485 000 $

14 322 р. 5 171 $ за м²

Чистая продажа
Следить за ценой
93.8 м²

Общая

69.2 м²

Жилая

1 из 6

Этаж

час назадID 3988472
pdf
Обзор по новостройкам Минска и пригорода
Цены и наличие квартир, условия покупки и оплаты

Описание

Продажа трехкомнатной квартиры в квартале Depo.

Квартал Depo находится в одной минуте пешком от Площади Победы на закрытой, свободной от автомобилей территории. Это современный жилой комплекс, который  гармонично объединяет  историю города с модным форматом жилья, построенным по современным нормам и технологиям. Почти половину пространства квартала  занимает зеленая зона, растения для которой подбирали специалисты в области ландшафтного дизайна. Дворы оборудованы детскими игровыми площадками, зонами для отдыха и занятий спортом. Движение транспорта предусмотрено только на подземном уровне автостоянки.

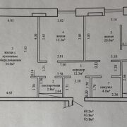
Квартира площадью 93.8 м.кв расположена на 1-м этаже 6-ти этажного железобетонного здания по ул. Киселева 6Д . По плану в квартире предполагаются  две спальни и кухня-гостиная , 2 санузла, предусмотрены также  гардеробная и  постирочное помещение. 

Вместе с квартирой продается  кладовая в подвальном помещении.

В подарок от собственника дизайн-проект работы Наталии Галонской –  победителя многочисленных конкурсов в дизайне интерьеров,  проекты которой всегда изыскано- актуальны и изящны.

Расположение дома в квартале подкупает удаленностью от пульсирующего шума цента столицы.

За фасадом, стилизованным под здания старого трамвайного депо, скрыты передовые технологии и самые современные инженерные системы:

  • Панорамные окна «в пол», немецкая фурнитура Roto,
  • Высота потолка – 3,14 м,
  • Индивидуальные вентканалы, система кондиционирования,
  • Внутрипольные конвекторы,
  • Лифт с этажа в подвальные помещения и подземный паркинг,
  • Закрытая территория квартала (вход на территорию  доступен только  по сканеру лица, отпечатку пальца или чипу)
  • Уникальное оснащение  двора и площадок возле дома,
  • Современная инженерия для управления недвижимостью.

Эта квартира подарит Вам  новый уровень жизни, комфорта и безопасности!

Звоните, организуем просмотр в удобное для Вас время!

Возьмем Вашу недвижимость в зачет для покупки этой!

Разместим Ваш объект недвижимости на рекламных площадках более чем 50 стран мира.


Присоединяйтесь к нам в соцсетях:
Instagram
Facebook
VK
OK
YouTube


ООО «Сильван-Инвест», УНП 192927433, лицензия №02240/383, Министерство юстиции РБ, 24.09.2019

Параметры объекта

  • Количество комнат

    3

  • Раздельных комнат

    3

  • Площадь общая

    93.8 м²

  • Площадь жилая

    69.2 м²

  • Год постройки

    2024

  • Этаж / этажность

    1 / 6

  • Тип дома

    Каркасно-блочный

  • Ремонт

    Без отделки

  • Высота потолков

    3 м

  • Санузел

    2 и более

  • Собственность

    Частная

  • Условия продажи

    Чистая продажа

  • Номер договора

    83/4 от 17.12.2025

  • Вид из окон

    Во двор

Примечание

Квартал Depo находится в одной минуте пешком от Площади Победы на закрытой, свободной от автомобилей территории. Это современный жилой комплекс, который гармонично объединяет историю города с модным форматом жилья, построенным по современным нормам и технологиям. Почти половину пространства квартала занимает зеленая зона, растения для которой подбирали специалисты в области ландшафтного дизайна. Дворы оборудованы детскими игровыми площадками, зонами для отдыха и занятий спортом.

Местоположение