ПРОДАЖА 3-комнатной квартиры с ОТЛИЧНОЙ планировкой в ТИХОМ центре у метро и парка!
616 600 р.
7 473 р.≈ 2 665 $ за м²
- г. Минскул. Захарова, 56
- Первомайская
- На карте
Общая
Жилая
Кухня
Этаж
Описание
Продается трехкомнатная квартира с идеальной планировкой и абсолютно новым ремонтом в тихом центре столицы! В пешей доступности – парк Горького и набережная реки Свислочи!
Квартира находится в 10-ти этажном кирпичном жилом доме 1972 года постройки на 7-м этаже на ул. Захарова, 56 Партизанского района. В 2022 году был проведен капитальный ремонт: заменена кровля и все коммуникации.
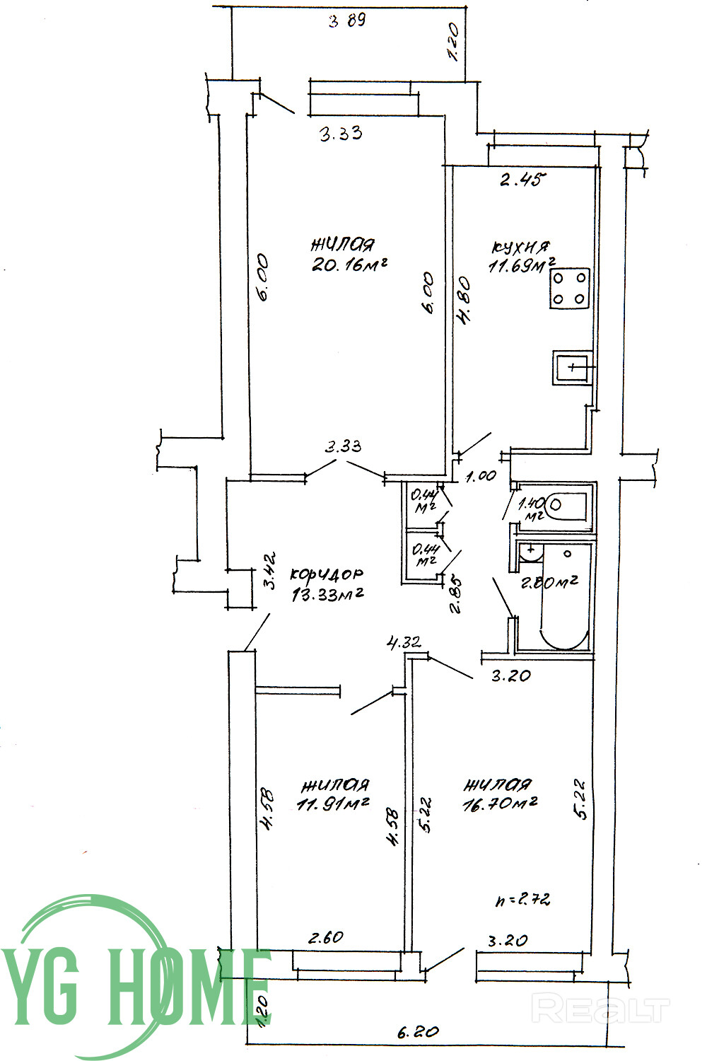
Общая площадь квартиры по СНБ – 82.47 кв.м., общая площадь – 78.87 кв.м., жилая площадь – 48.77 кв.м., высота потолков - 2.72 м. На этаже три квартиры, подъезд аккуратный, жильцы уважаемые и доброжелательные.
Выполнен добротный и ОЧЕНЬ аккуратный ремонт в спокойных тонах с использованием импортных материалов. Планировка квартиры грамотная и просторная, много света и воздуха. После ремонта в квартире никто не жил. Квартира полностью готова к проживанию, только останется установить мебель и технику по своему вкусу комфорту!
На первом этаже есть подвальное помещение!
Какие ремонтные работы выполнены:
- Полы – мега круто восстановленный паркет классической ёлочкой/керамогранит;
- Потолки – выровнены и покрашены;
- Стены –выровнены, оклеены импортными обоями (Германия/Бельгия) в приятных пастельных тонах;
- Плитка/керамогранит по всей квартире испанского и итальянского производства;
- Окна – деревянные, двухкамерные, выходят на две стороны: во двор и на гимназию №7; широкие деревянные подоконники, два балкона и оба застеклены; отличная тепло и звукоизоляция;
- Межкомнатные двери на скрытых петлях с магнитными замками; отличная входная дверь;
- В коридоре установлено два вместительных встроенных шкафа, вся фурнитура Blum;
- В санузле установлена чугунная ванна, раковина. В туалете установлен дополнительно гигиенический душ; всё сантехническое оборудование отличного качества;
- Электрика полностью заменена и во всей квартире установлены розетки немецкого производителя JUNG.
Безупречно развитая инфраструктура – в пешей доступности много магазинов, детские сады, школы, одна из лучших гимназия №7, банки, медцентры, кафе/рестораны, кинотеатры/музеи. Парк Горького, зеленая зона Слепянской водной системы – отличное место для прогулок с семьей или пробежек любителям активного образа жизни!
Транспортное сообщение - ещё одно важное преимущество: 10 минут пешком до ст.м. «Пролетарская», 15 минут - до «Площади Победы», вблизи дома остановки общественного транспорта (автобус, троллейбус, трамвай). В любую точку города можно добраться за максимально короткое время!
Чистая продажа! Показы в удобное для Вас время!
Не упустите возможность стать частью такого уникального места, где ранее строилась элита Минска!
Недвижимость в самом центре Минска – это хорошая инвестиция в будущее!!!
Мы гарантируем быструю и комфортную сделку.
Поможем продать вашу недвижимость для покупки нашей!
Общество с ограниченной ответственностью «ЮГ Хоум»
УНП: 193511758
Лицензия: 02240/412 от 19.03.2021, Министерство юстиции РБ
Параметры объекта
- Количество комнат
3
- Раздельных комнат
3
- Площадь общая
82.5 м²
- Площадь жилая
48.8 м²
- Площадь кухни
11.7 м²
- Площадь балконов
3.6 м²
- Год постройки
1972
- Год капитального ремонта
2022
- Этаж / этажность
7 / 10
- Тип дома
Кирпичный
- Планировка
Брежневка
- Балкон
Балкон
- Ремонт
Отличный
- Высота потолков
2.7 м
- Санузел
Раздельный
- Стоянка автомобиля
Есть
- Собственность
Частная
- Условия продажи
Чистая продажа
- Номер договора
21/1 от 21.01.2026
- Вид из окон
Во двор
Удобства
Интернет
Лифт
Примечание
Местоположение
- Область
- Населенный пункт
- Улица
- Номер дома
56
- Район города
- Микрорайон
- Координаты
53.8984, 27.5833


