Продается многофункциональное здание в Колодищах! Инвестиционный проект прибыль 5%-10% годовых.
4 560 270 р.
Тип
Площадь
Этаж
Описание
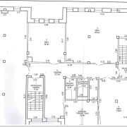
Продается многофункциональное здание (площадь 1365 кв.м.) в аг. Колодищи, ул. Парковая, 19. (всё помещение в аренде ) прибыль 5%-10% годовых.
Новое современное здание 2023 года ! В 10 км. от Минска , Московское направление !
Есть возможность покупки по этажам!
1-й этаж 441 м2;
2-й этаж 453 м2;
3-й этаж 453 м2.
В здании имеется три отдельных входа .
Здание расположено на земельном участке площадью 0.42 Га , отдельный въезд на территорию , большая собственная парковка.
Коммуникации:
- Собственная котельная ,с двумя каскадными котлами бош ;
- Система вентиляции с рекуперацией, на первом этаже дополнительно принудительная вентиляция;
- Отдельная трансформаторная станция 110кВа;
- Вода , канализация центральная;
- Рядом размещена ручная автомойка на 5 машиномест .
Есть возможность изменить назначение помещений под пожелания покупателя .
Здание без отделки, бонус для покупателей планировочные дизайн решения и фото .
Звоните ! Согласуем удобное для Вас время показа !
Покупатель не оплачивает услуги агентства!
Параметры объекта
- Тип объекта
Офис
- Площадь общая
1360 м²
- Этаж / этажность
1 / 3
- Год постройки
2023
- Раздельных помещений
1 - 10
- Материал стен
Кирпичный
- Ремонт
Без отделки
- Отопление
Есть
- Электроснабжение
Есть
- Естественное освещение
Есть
- Вода
Есть
- Санузел
Есть
- Принадлежность объекта
Частная
- НДС
НДС нет (0%)
- Юридический адрес
Да
- Номер договора
346/1 от 16.03.2026
Отдел коммерческой недвижимости
Контактное лицо
Примечание
Местоположение
- Область
- Район
Минский район
- Населенный пункт
- Улица
- Номер дома
19
- Сельсовет
Колодищанский с/с
- Направление
Московское, 8.2 км от МКАД
- Координаты
53.960377605, 27.764033271
