Продажа административно - торгового помещения - Минск, Богдановича, 142
4 075 р./м²
Тип
Площадь
Этаж
Описание
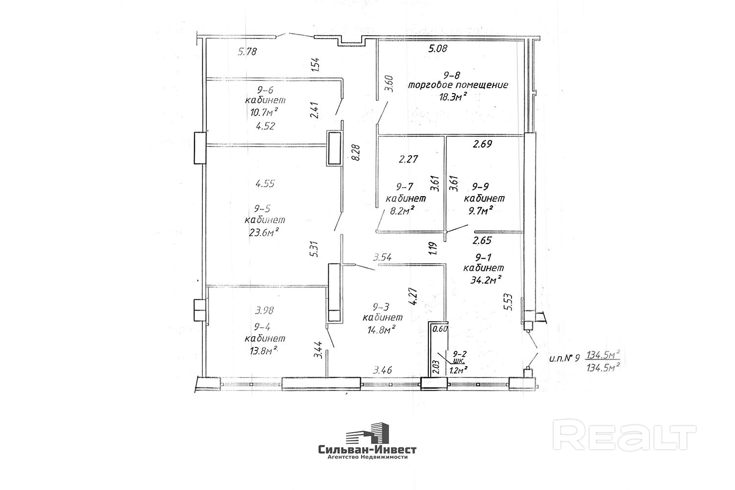
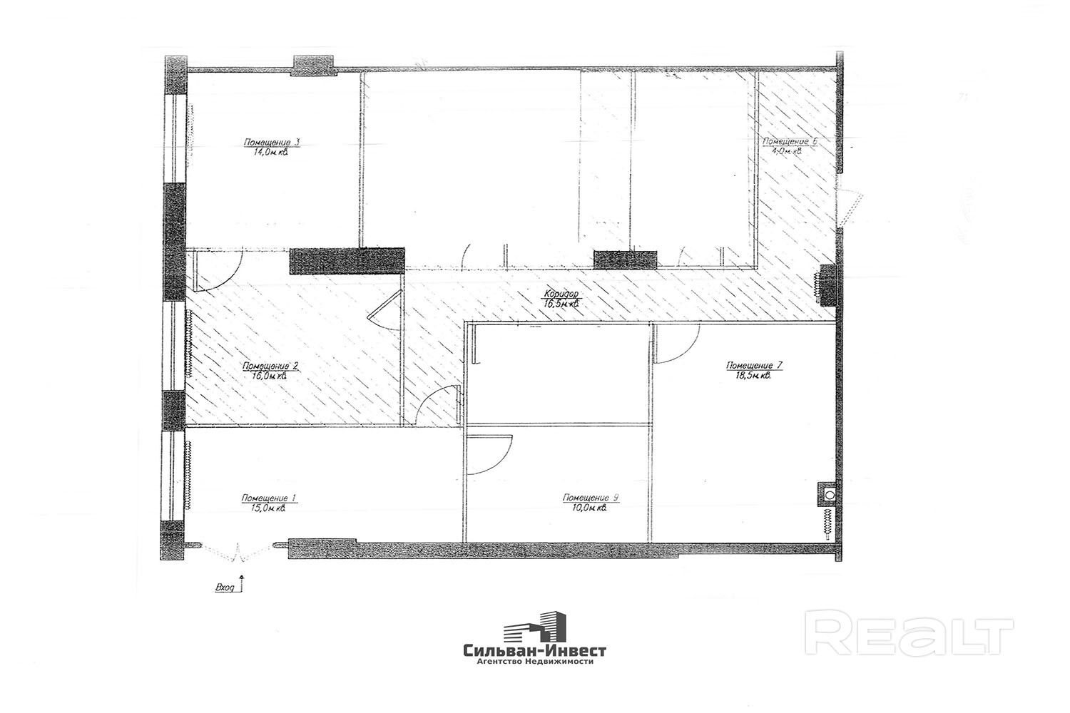
Продажа административно - торгового помещения
Адрес: Минск, ул. М. Богдановича, 142
Площадь: 134,5 м2
Расположены помещения на 2- м подземном этаже блочной подземной двухуровневой автостоянки (1 этаж - вход со стороны парковки) , 2014 года постройки. Развитая инфраструктура района, плотная жилая застройка, рядом ул. Некрасова - Бангалор.
Характеристики:
- Выгодное расположение
- Отдельный вход
- Удобные подъездные пути
- Кабинетная система (холл, ресепшн, кухня, переговорная)
- Наземная парковка
- Безопасность - пропускная система
Покупатель не оплачивает услуги риэлтерской организации!
Ваш агент – Андрей Смолка
Присоединяйтесь к нам в соцсетях:
Instagram
Facebook
VK
OK
YouTube
Договор № 39/3 от 23.06.2025 по 22.06.2027
ООО «Сильван - Инвест», УНП 192927433, лицензия №02240/383, Министерство юстиции РБ, 24.09.2019.
Параметры объекта
- Тип объекта
Офис
- Площадь общая
134.50 м²
- Этаж / этажность
1 / 2
- Год постройки
2014
- Материал стен
Блочный
- Высота потолков
2.7 м
- Ремонт
Хороший
- Отопление
Есть
- Электроснабжение
Есть
- Естественное освещение
Есть
- Вода
Есть
- Санузел
Есть
- Количество телефонов
Больше пяти
- Парковка
Есть
- Принадлежность объекта
Частная
- НДС
НДС нет (0%)
- Расположение
В жилом доме
- Юридический адрес
Да
- Номер договора
39/3 от 22.06.2025
Оснащение
Кондиционер
Оживленное место
Интернет
Отдельный вход
Смолка Андрей
Контактное лицо
Примечание
Местоположение
- Область
- Населенный пункт
- Улица
- Номер дома
142
- Район города
- Микрорайон
- Координаты
53.9388, 27.5856
