Уникальное предложение для успешных людей!
1 514 000 р.
Тип
Площадь
Этаж
Описание
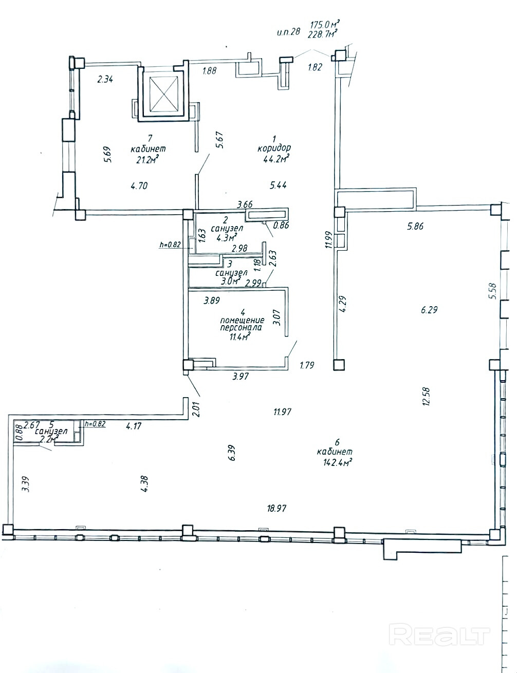
Офисное помещение 228.7м2 в самом престижном и оживленном центре Минска по адресу: ул. Зыбицкая, 6 на берегу Свислочи!
Офис находится на на 2-ом этаже 4-ёх этажного современного здания 2015 года постройки. Он разделён на несколько изолированных кабинетов, включая кухню для приема пищи и три санузла. Планировку можно изменить под свой запрос.
Напольное покрытие – ламинат, стены окрашены, окна-стеклопакеты, высота потолков 3,6 м.
Все необходимые коммуникации проведены: электроснабжение, отопление, водоснабжение и канализация, система кондиционирования и приточно-вытяжной вентиляции, индивидуальные приборы учёта электроэнергии, высокоскоростной интернет, пожарная сигнализация, доступ круглосуточный.
Здание оборудовано современными лифтами Schindler (Швейцария).
Обслуживание здания осуществляется товариществом собственников.
Широко развита инфраструктура: в шаговой доступности кафе, рестораны, банки, медицинские учреждения, магазины и различные зоны отдыха, что весьма кстати для обеденного перерыва.
Станции метро «Октябрьская» и «Немига» находятся в шаговой доступности, что дает возможность сотрудникам без личного авто легко и без пробок добираться до/после работы.
Если вы ищите объект, который не просто «площадь в метрах», а готовый инструмент для заработка, тогда Вам к нам, звоните, покажем в удобное для вас время.
Параметры объекта
- Тип объекта
Офис
- Площадь общая
228.70 м²
- Этаж / этажность
2 / 4
- Год постройки
2015
- Класс
A
- Материал стен
Кирпичный
- Высота потолков
3.5 м
- Отопление
Есть
- Электроснабжение
Есть
- Вода
Есть
- Санузел
Есть
- Количество телефонов
1 телефон
- Принадлежность объекта
Частная
- НДС
НДС нет (0%)
- Расположение
В бизнес центре
- Номер договора
166/1 от 13.10.2025
Оснащение
Охрана
Сигнализация
Видеонаблюдение
Оживленное место
Интернет
Примечание
Местоположение
- Область
- Населенный пункт
- Улица
- Номер дома
6
- Район города
- Координаты
53.9064, 27.5577
