Вашему вниманию предлагается к приобретению административно-хозяйственное здание.
1 980 000 р.
- г. Минскул. Полтавская, 10
- Аэродромная (2024)
- 20 минут
- На карте
Тип
Площадь
Этаж
Описание
Вашему вниманию предлагается к приобретению административно-хозяйственное двухэтажное кирпичное здание общей площадью 778.4 кв.м (574,2 кв.м нормируемая) по улице Полтавской на благоустроенном земельном участке на 8,04 сотки с правом аренды и собственной парковкой.
Новая современная отделка в холле, коридорах, офисах. Охрана, администратор, видеонаблюдение, раздельные санузлы (мужской и женский), коридорная система, естественное освещение, недалеко остановки общественного транспорта – Камвольный комбинат и другие. Наличие арендаторов, что предполагает стабильный доход как вложение.
Здание имеет следующие характеристики:
- наименование - Административное здание, назначение - Здание административно-хозяйственное, год постройки - 1952, год реконструкции - 2020;
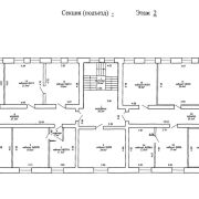
- общая площадь здания - 788,5 м2; нормируемая площадь здания - 574,2м2; этажность здания - 2;
- количество помещений - 50; количество кабинетов - 30; 3 санузла, коридоры, вестибюли, лестничный марш;
- фундамент - бутобетон; материал стен - кирпич; перекрытия - дерево; конструкция здания - бескаркасная, крыша - металлочерепица; полы - плитка, доска, бетон, паркет, линолеум, окна - ПВХ;
- телефонизация - есть;
- электроснабжение - центральное; водопровод - центральный, канализация - центральное; отопление - центральное;
- размер земельного участка - 0,0804 га, назначение участка - для эксплуатации и обслуживания административного здания.
Лицензия: 02240/446 МЮ РБ, 11.07.2022
Параметры объекта
- Тип объекта
Офис
- Площадь участка
8 соток
- Площадь общая
778.40 м²
- Этаж / этажность
2 / 2
- Год постройки
1952
- Материал стен
Кирпичный
- Высота потолков
2.7 м
- Ремонт
Хороший
- Отопление
Есть
- Электроснабжение
Есть
- Естественное освещение
Есть
- Вода
Есть
- Санузел
Есть
- Парковка
Есть
- Принадлежность объекта
Частная
- НДС
НДС включен
- Юридический адрес
Да
- Номер договора
800/1 от 19.10.2025
Оснащение
Охрана
Видеонаблюдение
Сигнализация
Компьютерная сеть
Интернет
Отдельный вход
Примечание
Местоположение
- Область
- Населенный пункт
- Улица
- Номер дома
10
- Район города
- Микрорайон
- Координаты
53.8604, 27.5635
