В продаже офисы площадью 35,4м2, 77,9м2 на 14 этаже по Тимирязева 65б
3 300 р./м²
Тип
Площадь
Этаж
Описание
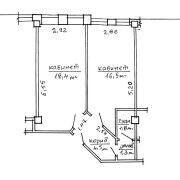
В продаже офисы площадью 35,4м2, 77,9м2 на 14 этаже по Тимирязева 65б в современном деловом Бизнес центре.
Предлагаем в продажу офис площадью 35,4м2 с машиноместом на крытом паркинге
Также возможна продажа без машиноместа с учетом договорной цены продажи.
Предлагаем в продажу офис площадью 77,9м2 со своим санузлом и машиноместом на крытом паркинге.
Также возможна продажа без машиноместа с учетом договорной цены продажи.
Есть все коммуникации.
Парковка.
Год постройки 2006.
Рядом Тц Палацио, ТЦ Корона Замок.
Здесь вы воплотите все свои мечты.
Успейте приобрести коммерческую недвижимость в Новый год.
Лицензия: 02240/446 МЮ РБ, 11.07.2022
Параметры объекта
- Тип объекта
Офис
- Площадь общая
35.40 - 77.90 м²
- Этаж / этажность
14 / 16
- Материал стен
Блочный
- Высота потолков
2.7 м
- Ремонт
Хороший
- Отопление
Есть
- Электроснабжение
Есть
- Естественное освещение
Есть
- Санузел
Есть
- Парковка
Есть
- Принадлежность объекта
Частная
- НДС
НДС нет (0%)
- Расположение
В бизнес центре
- Юридический адрес
Да
- Номер договора
904/1,906/1,907/1,916/1 от 24.11.2025
Оснащение
Охрана
Сигнализация
Видеонаблюдение
Оживленное место
Примечание
Местоположение
- Область
- Населенный пункт
- Улица
- Номер дома
65/Б
- Район города
- Координаты
53.9226, 27.5115
