Купить помещение, д. Лесковка, ГСПК Лесной-1, 1/4/21 (Минский р-н, Минская область)
981 974 р.
Продажа
Следить за ценой
- Минская областьМинский р-нд. ЛесковкаГСПК Лесной-1, 1/4/21
- На карте
Помещение
Тип
353.80 м²
Площадь
17.05.2026ID 4090034
Параметры объекта
- Тип объекта
Помещение
- Площадь общая
353.80 м²
- Этажность
2
- Год постройки
2025
- Раздельных помещений
8
- Материал стен
Блочный
- Высота потолков
3.5 м
- Ремонт
Хороший
- Отопление
Есть
- Электроснабжение
380В
- Электрическая мощность
30 кВт
- Естественное освещение
Есть
- Вода
Горячая
- Санузел
2 санузла
- Принадлежность объекта
Частная
- Расположение
Частный сектор
- Новостройка
Да
Оснащение
Видеонаблюдение
Отдельный вход
Продавец
Руслан
Контактное лицо
Примечание
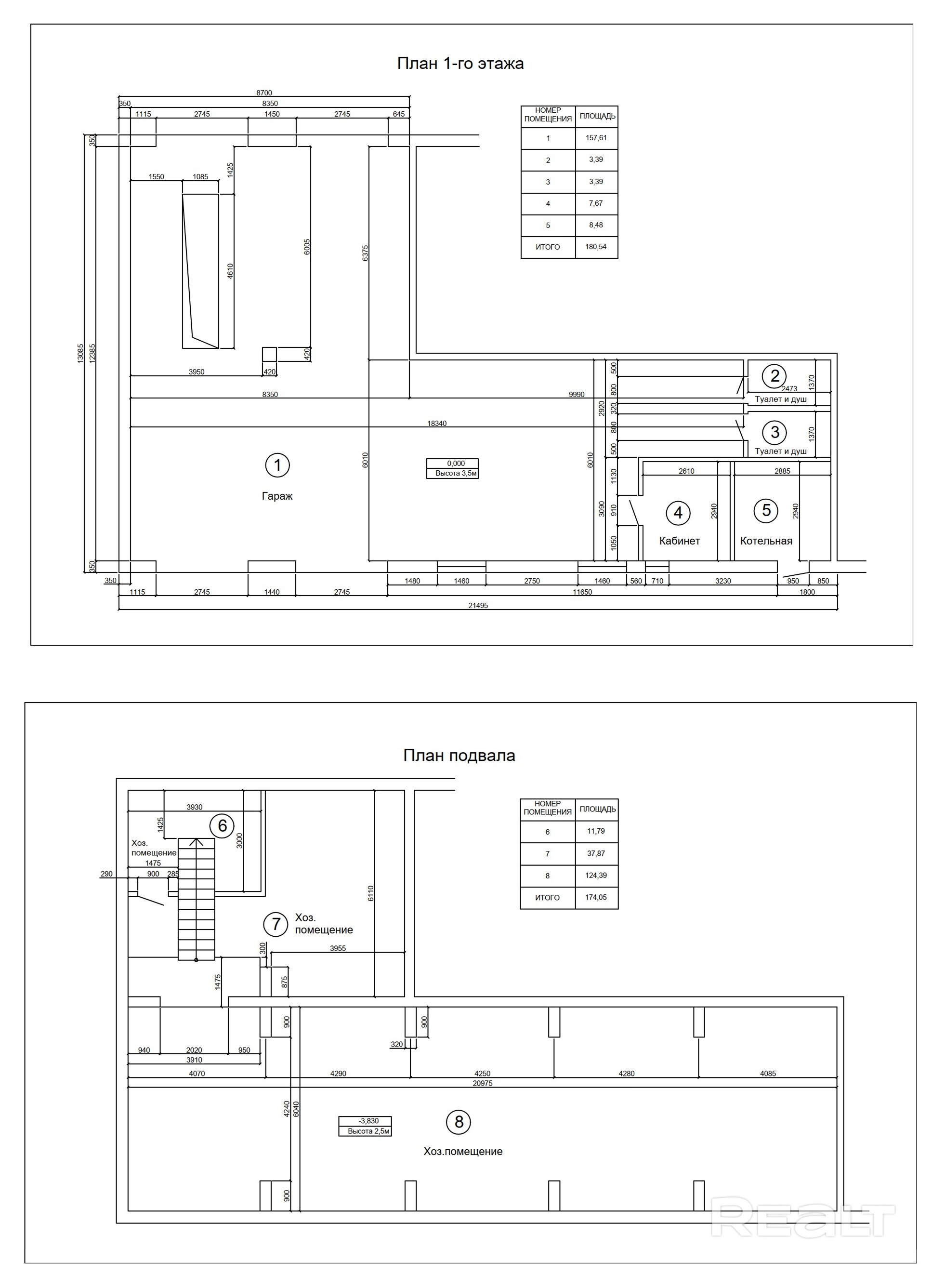
Продаётся готовый коммерческий объект 354,6 м² (2 уровня) под автосервис, производственный цех, склад, мастерскую. Свежий чистовой ремонт. Подведены все коммуникациями (водоснабжение, канализация, электричество, вентиляция, отопление). Низкие эксплуатационные расходы (своя скважина и септик, экономное пеллетное отопление, низкий земельный налог). Полностью пригодно для немедленного запуска бизнеса. Планы и технические чертежи прилагаются.
Местоположение
- Область
- Район
Минский район
- Населенный пункт
- Улица
ГСПК Лесной-1
- Номер дома
1/4/21
- Сельсовет
Боровлянский с/с
- Направление
Логойское, 8.6 км от МКАД
- Координаты
54.005930456, 27.72691065
